K čemu, o čeho patice jsou,hádanka pro dnešek :)
K čemu, o čeho patice jsou,hádanka pro dnešek :)
Ahoj Opláci,
dneska jsem se konečně dostal k sundání nárazníku a objevil jsem tři patice bez partnera a ukostření bez kablu.
Kdo z vás mi řekne od čeho to je.
Vše je ze strany řidiče.
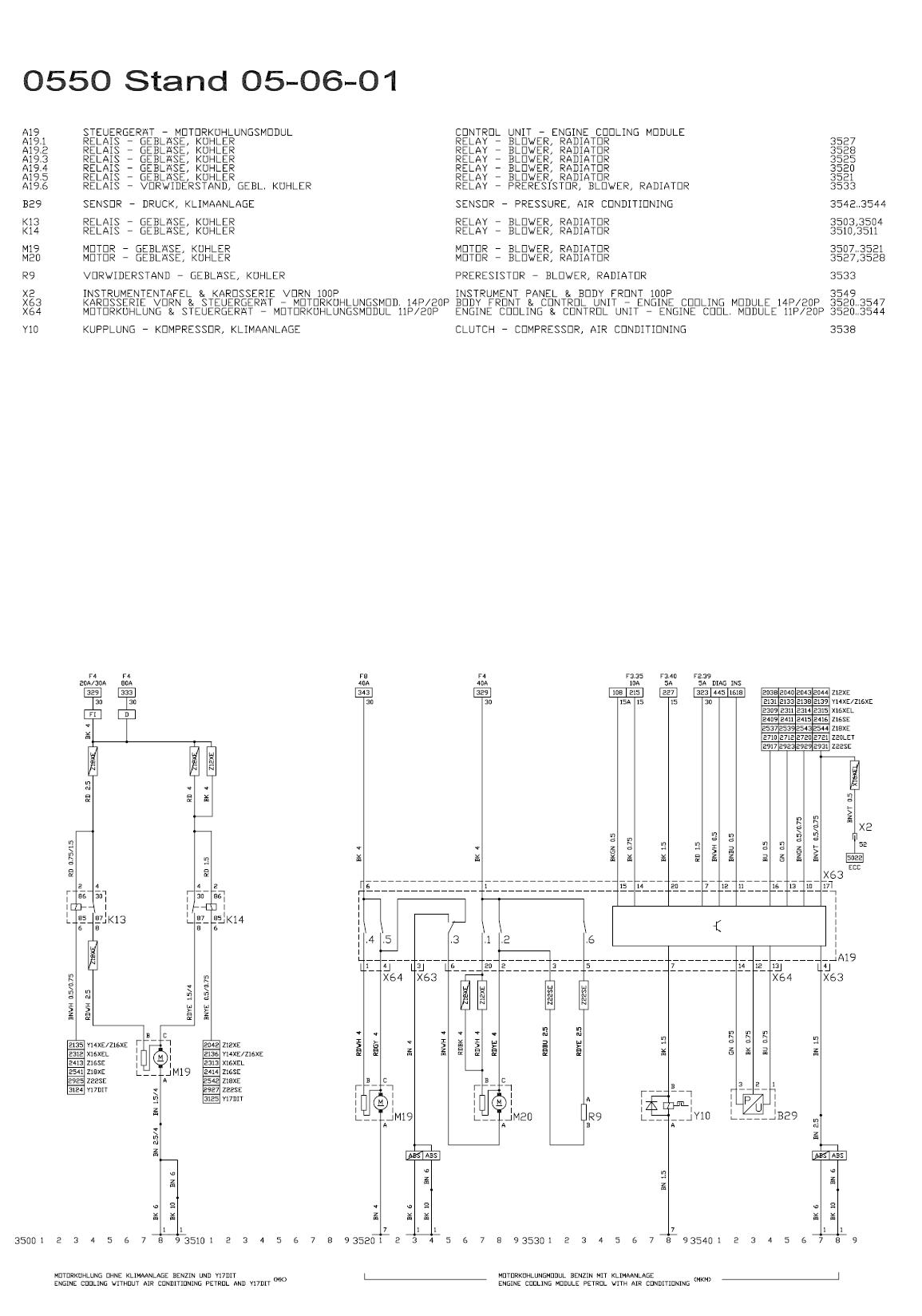
A jako bonus svítí kontrolka asi chladiče s větrákem. Kde najdu čidlo které je vadné?
Prostě předešlý majitel byl asi kutil.
Každopádně díky moc.
dneska jsem se konečně dostal k sundání nárazníku a objevil jsem tři patice bez partnera a ukostření bez kablu.
Kdo z vás mi řekne od čeho to je.
Vše je ze strany řidiče.
A jako bonus svítí kontrolka asi chladiče s větrákem. Kde najdu čidlo které je vadné?
Prostě předešlý majitel byl asi kutil.
Každopádně díky moc.
Opel Astra G 2.0 DTI ,můj první diesel a jsem spojen.
- Reklama
Re: K čemu, o čeho patice jsou,hádanka pro dnešek :)
prdní fotka DODO
druhá čerpadlo ostřikovače světel
třetí je svorkovnice motorku štelování světla
druhá čerpadlo ostřikovače světel
třetí je svorkovnice motorku štelování světla
Zprávy prosím pouze emailem na info zavináč doopla.cz
_________________
Astra G 3dv. Z16XE Automat
Astra G 3dv. Z20LET OPC
DoOpla.cz – Opel originální díly, příslušenství a oleje Opel
_________________
Astra G 3dv. Z16XE Automat
Astra G 3dv. Z20LET OPC
DoOpla.cz – Opel originální díly, příslušenství a oleje Opel
Re: K čemu, o čeho patice jsou,hádanka pro dnešek :)
Vojta píše:prdní fotka DODO
druhá čerpadlo ostřikovače světel
třetí je svorkovnice motorku štelování světla
AHOJ A NA DVOJCE SPODNÍ PATICE?
ALE JINAK
NÁRAZNÍK JE BEZ OSTŘIKOVAČŮ,ALE TO NEVADÍ.
Opel Astra G 2.0 DTI ,můj první diesel a jsem spojen.
Re: K čemu, o čeho patice jsou,hádanka pro dnešek :)
Hlavní je že to není nic důležitého.karloz27 píše:Vojta píše:prdní fotka DODO
druhá čerpadlo ostřikovače světel
třetí je svorkovnice motorku štelování světla
AHOJ A NA DVOJCE SPODNÍ PATICE?![]()
ALE JINAK![]()
![]()
![]()
NÁRAZNÍK JE BEZ OSTŘIKOVAČŮ,ALE TO NEVADÍ.
Opel Astra G 2.0 DTI ,můj první diesel a jsem spojen.
- vasekpetr1
- Příspěvky: 3106
- Registrován: 24 led 2006, 08:33
- Bydliště: Červená Hospoda u Třebíče
Re: K čemu, o čeho patice jsou,hádanka pro dnešek :)
Tu první fotku vezmi z větší dálky, ať vystopujeme, v kterých místech je to kostřící místo.
Dřívější srdcovka, prodaná na díly pro UA: Astra 1,6 G caravan 99, motor X16SZR, 55 kW, VIN: W0L0TGF35X20326xx, tmavě zelená metalíza,
Nynější mazlík: Opel Zafira B, 1,9 TDCI - Z19DT - 2008, černá, najeto 170 tkm.
A menuju se Petr a né Vašek a žiju v Hospodě -:)
Nynější mazlík: Opel Zafira B, 1,9 TDCI - Z19DT - 2008, černá, najeto 170 tkm.
A menuju se Petr a né Vašek a žiju v Hospodě -:)
Re: K čemu, o čeho patice jsou,hádanka pro dnešek :)
Na druhej fotke ta spodna patica - steker, je na cidlo vysky hladiny v nadobke na ostrekovace.
Opel Insignia 2,0 Cdti 2010
Opel Astra G 1,4 16V r.v. 1999 ex...
Opel Corsa B 1,2 16V r.v. 1999
Opel Astra G 1,4 16V r.v. 1999 ex...
Opel Corsa B 1,2 16V r.v. 1999
Re: K čemu, o čeho patice jsou,hádanka pro dnešek :)
to nic neznamená, svazek je připraven na spoustu věcí který v autě nemáš, a bejt tebou tak bych si vyřešil ten náklon světelkarloz27 píše: NÁRAZNÍK JE BEZ OSTŘIKOVAČŮ,ALE TO NEVADÍ.
Zprávy prosím pouze emailem na info zavináč doopla.cz
_________________
Astra G 3dv. Z16XE Automat
Astra G 3dv. Z20LET OPC
DoOpla.cz – Opel originální díly, příslušenství a oleje Opel
_________________
Astra G 3dv. Z16XE Automat
Astra G 3dv. Z20LET OPC
DoOpla.cz – Opel originální díly, příslušenství a oleje Opel
- vasekpetr1
- Příspěvky: 3106
- Registrován: 24 led 2006, 08:33
- Bydliště: Červená Hospoda u Třebíče
Re: K čemu, o čeho patice jsou,hádanka pro dnešek :)
Ta utržená kostra by mohla být od některého z větráků, případně od ŘJ chlazení, která je vedle levého příčníku za nárazníkem.
Dřívější srdcovka, prodaná na díly pro UA: Astra 1,6 G caravan 99, motor X16SZR, 55 kW, VIN: W0L0TGF35X20326xx, tmavě zelená metalíza,
Nynější mazlík: Opel Zafira B, 1,9 TDCI - Z19DT - 2008, černá, najeto 170 tkm.
A menuju se Petr a né Vašek a žiju v Hospodě -:)
Nynější mazlík: Opel Zafira B, 1,9 TDCI - Z19DT - 2008, černá, najeto 170 tkm.
A menuju se Petr a né Vašek a žiju v Hospodě -:)
Re: K čemu, o čeho patice jsou,hádanka pro dnešek :)
ta utržená kostra rozhodně neni originál, něco dodělanýho a pak "oddělanýho"
Zprávy prosím pouze emailem na info zavináč doopla.cz
_________________
Astra G 3dv. Z16XE Automat
Astra G 3dv. Z20LET OPC
DoOpla.cz – Opel originální díly, příslušenství a oleje Opel
_________________
Astra G 3dv. Z16XE Automat
Astra G 3dv. Z20LET OPC
DoOpla.cz – Opel originální díly, příslušenství a oleje Opel
Re: K čemu, o čeho patice jsou,hádanka pro dnešek :)
Dobře,dobře koukal jsem na nádobku ostřikovačů,ale nenašel jsem kam s tím.
Ta kostra je na příčníku u řidiče pod motorem.
No a ještě čidlo kontrolky viz. foto.
Předpokládám že je to něco ze saharou, protože jsem dneska našel spínač pod volantem a vytaženou pojistku od sahary.
Když jsem jí tam dal sahara se točila i bez klíčku.
Říkám prostě kutil.
Když jsem předtím koupil Subaru tak jsem měl asi 3m drátu které k ničemu nebyly.
Každopádně díky moc.
Ta kostra je na příčníku u řidiče pod motorem.
No a ještě čidlo kontrolky viz. foto.
Předpokládám že je to něco ze saharou, protože jsem dneska našel spínač pod volantem a vytaženou pojistku od sahary.
Když jsem jí tam dal sahara se točila i bez klíčku.
Říkám prostě kutil.
Když jsem předtím koupil Subaru tak jsem měl asi 3m drátu které k ničemu nebyly.
Každopádně díky moc.
- Přílohy
-
- Astra Dashboard lights - 2010-06-27.jpg (2.45 KiB) Zobrazeno 3437 x
Opel Astra G 2.0 DTI ,můj první diesel a jsem spojen.
Re: K čemu, o čeho patice jsou,hádanka pro dnešek :)
u tý nádržky nic nehledej, prostě to neni kam zapojit když tam čidlo hladiny ani ostřikovače světel nemáš, svazky jsou univerzílní tak tam jsou svorkovnice i na to co v autě nikdy nebylo, chápeš?
a kontrolka co ti svítí je kontrolka chlazení a na to máš jednotku před levym přednim kolem, a když je jednotka tak se dělá diagnostika, takže tim začni
a kontrolka co ti svítí je kontrolka chlazení a na to máš jednotku před levym přednim kolem, a když je jednotka tak se dělá diagnostika, takže tim začni
Zprávy prosím pouze emailem na info zavináč doopla.cz
_________________
Astra G 3dv. Z16XE Automat
Astra G 3dv. Z20LET OPC
DoOpla.cz – Opel originální díly, příslušenství a oleje Opel
_________________
Astra G 3dv. Z16XE Automat
Astra G 3dv. Z20LET OPC
DoOpla.cz – Opel originální díly, příslušenství a oleje Opel
- vasekpetr1
- Příspěvky: 3106
- Registrován: 24 led 2006, 08:33
- Bydliště: Červená Hospoda u Třebíče
Re: K čemu, o čeho patice jsou,hádanka pro dnešek :)
Byl jsem se podívat do svého vozu a zkusil udělat šmíráckou fotku pod nárazníkem a já mám sice pouze jeden černý vodič na kostru , ale dle schematu by měly do chlazení vést dva vodiče (jeden pro větrák, druhý pro ŘJ chlazení) . Nevím, kde je to druhé ukostření, ale možná proto ti ta sahara hapruje, že nemá řádnou kostru. (Těch modrých fousů u mě si nevšímej - to jsou dodělávané mlhovky).
Dřívější srdcovka, prodaná na díly pro UA: Astra 1,6 G caravan 99, motor X16SZR, 55 kW, VIN: W0L0TGF35X20326xx, tmavě zelená metalíza,
Nynější mazlík: Opel Zafira B, 1,9 TDCI - Z19DT - 2008, černá, najeto 170 tkm.
A menuju se Petr a né Vašek a žiju v Hospodě -:)
Nynější mazlík: Opel Zafira B, 1,9 TDCI - Z19DT - 2008, černá, najeto 170 tkm.
A menuju se Petr a né Vašek a žiju v Hospodě -:)
Re: K čemu, o čeho patice jsou,hádanka pro dnešek :)
Vojta píše:u tý nádržky nic nehledej, prostě to neni kam zapojit když tam čidlo hladiny ani ostřikovače světel nemáš, svazky jsou univerzílní tak tam jsou svorkovnice i na to co v autě nikdy nebylo, chápeš?
a kontrolka co ti svítí je kontrolka chlazení a na to máš jednotku před levym přednim kolem, a když je jednotka tak se dělá diagnostika, takže tim začni
Já se obávám že to bylo někde zapojeno, protože v patici od hladiny vody v ostřikovači, mám vražený drátek na zkrat.
Okej začnu diagnostikou.
Ještě jednou díky moc.
Opel Astra G 2.0 DTI ,můj první diesel a jsem spojen.
- vasekpetr1
- Příspěvky: 3106
- Registrován: 24 led 2006, 08:33
- Bydliště: Červená Hospoda u Třebíče
Re: K čemu, o čeho patice jsou,hádanka pro dnešek :)
Nebyl ten předek bouchnutý? Že by to někdo osadil nádržkou bez čidla?
Dřívější srdcovka, prodaná na díly pro UA: Astra 1,6 G caravan 99, motor X16SZR, 55 kW, VIN: W0L0TGF35X20326xx, tmavě zelená metalíza,
Nynější mazlík: Opel Zafira B, 1,9 TDCI - Z19DT - 2008, černá, najeto 170 tkm.
A menuju se Petr a né Vašek a žiju v Hospodě -:)
Nynější mazlík: Opel Zafira B, 1,9 TDCI - Z19DT - 2008, černá, najeto 170 tkm.
A menuju se Petr a né Vašek a žiju v Hospodě -:)
- denny
- Příspěvky: 3292
- Registrován: 06 pro 2008, 15:20
- Bydliště: Brozany u Kuňky,Pardubice
- Kontaktovat uživatele:
Re: K čemu, o čeho patice jsou,hádanka pro dnešek :)
Ta tvoje kontrolka není žádné čidlo,ale nouzový režim jednotky chlazení motoru.Je potřeba načíst její paměť.Jednotka je umístěna vpředu vlevo mezi nárazníkem a plastovým nadkolím.