předřadný odpor sahary
předřadný odpor sahary
Chlapi nevíte někdo jestli se dá koupit a kde jen patice s předřadným odporem tří zdířku na Opel astra 1,6 8v 55kw 98rv X16SZR
- Reklama
- vasekpetr1
- Příspěvky: 3106
- Registrován: 24 led 2006, 08:33
- Bydliště: Červená Hospoda u Třebíče
Re: předřadný odpor sahary
Když se dívám na schema, tak předřadný odpor je součástí vlastního motoru, takže konektor tam asi nebude (pouze u motoru Z22SE, což není tvůj případ). Zřejmě bude uchycen někde na paprsku sahary u motoru ventilátoru v průvanu.
Dřívější srdcovka, prodaná na díly pro UA: Astra 1,6 G caravan 99, motor X16SZR, 55 kW, VIN: W0L0TGF35X20326xx, tmavě zelená metalíza,
Nynější mazlík: Opel Zafira B, 1,9 TDCI - Z19DT - 2008, černá, najeto 170 tkm.
A menuju se Petr a né Vašek a žiju v Hospodě -:)
Nynější mazlík: Opel Zafira B, 1,9 TDCI - Z19DT - 2008, černá, najeto 170 tkm.
A menuju se Petr a né Vašek a žiju v Hospodě -:)
Re: předřadný odpor sahary
No právě,že sem ho vydělal a ten kryt děrovaný se mi rozpadl v ruce jak byl zrezlej a od toho odporu se mi oddělal jeden drátek.Je tam nutný ten děrovaný plechový kryt a jestli stačí jen připájet ten drátek k tomu odporu.Právě,že sem se díval a nikde sem to nemohl sehnat.Tam je to jen připájené na dvou drátkách,ale nevím kde koupit jen tu patici abych to mohl přehodit.
- vasekpetr1
- Příspěvky: 3106
- Registrován: 24 led 2006, 08:33
- Bydliště: Červená Hospoda u Třebíče
Re: předřadný odpor sahary
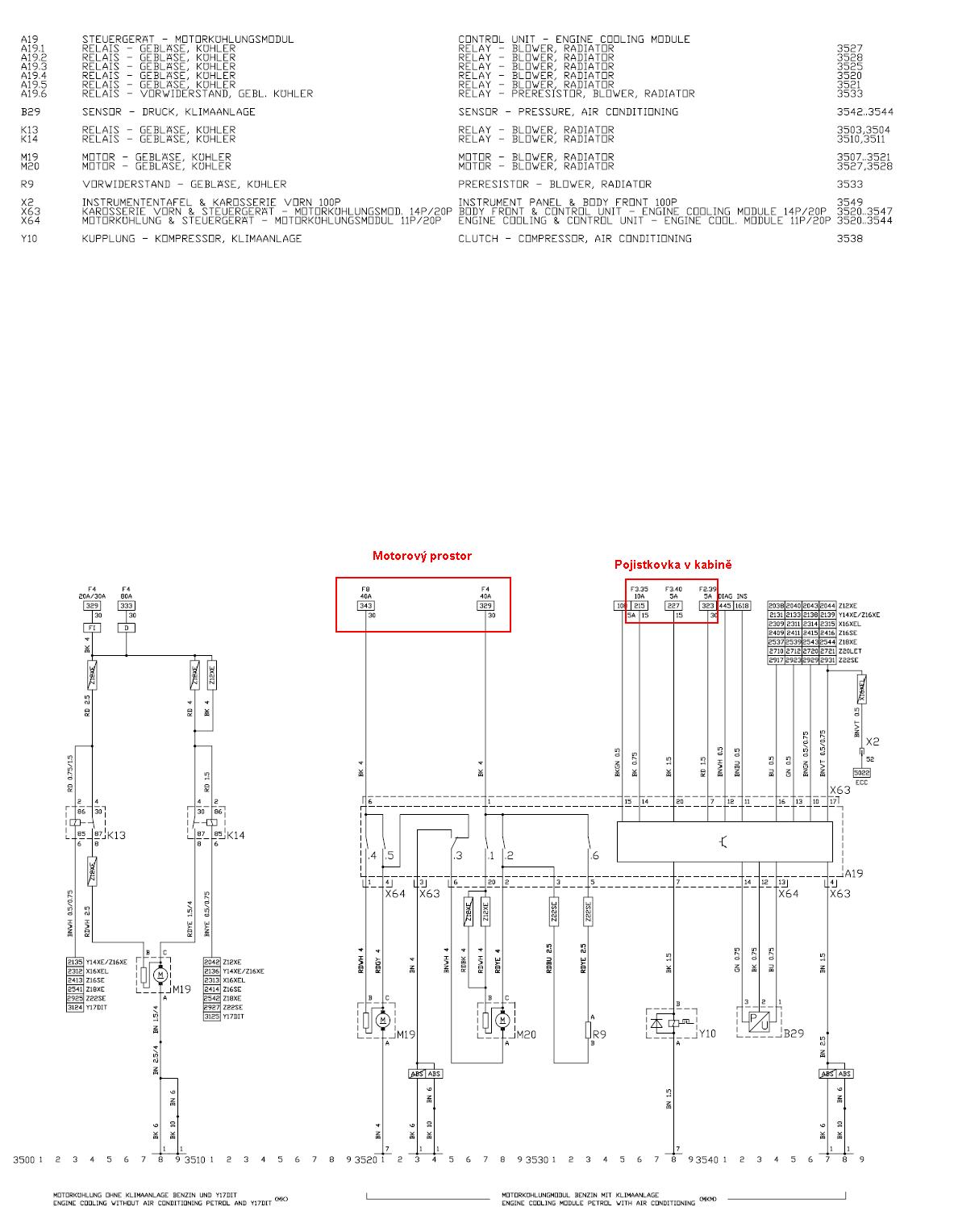
Tutaj je schema
, urči o který konektor se jedná (z kterého větráku - chladič, klima, barva vodičů) a zkus ho tady od někoho z bouračky vydyndat i s kouskem kabeláže. Pak nasvorkuješ ty tři káblíky pomocí dutinek a přes ně smršťovačku. Napájet odpor asi nepůjde - tam bude tvrdý cín. Nemáš jen přerušenou tu tepelnou pojistku?
P.S. ta poslední fotka je vzhůru nohama
.
P.S. ta poslední fotka je vzhůru nohama
Naposledy upravil(a) vasekpetr1 dne 20 zář 2013, 09:08, celkem upraveno 1 x.
Dřívější srdcovka, prodaná na díly pro UA: Astra 1,6 G caravan 99, motor X16SZR, 55 kW, VIN: W0L0TGF35X20326xx, tmavě zelená metalíza,
Nynější mazlík: Opel Zafira B, 1,9 TDCI - Z19DT - 2008, černá, najeto 170 tkm.
A menuju se Petr a né Vašek a žiju v Hospodě -:)
Nynější mazlík: Opel Zafira B, 1,9 TDCI - Z19DT - 2008, černá, najeto 170 tkm.
A menuju se Petr a né Vašek a žiju v Hospodě -:)
Re: předřadný odpor sahary
Jó to vím,že je naopak.Právě sem myslel,že by se dala někde sehnat jen ta patice a prěpájet to. Tady jsou ještě dvě fotečky.Pod tím vinutím je jeden ten drátek odtrhl od toho asi odporu.
- vasekpetr1
- Příspěvky: 3106
- Registrován: 24 led 2006, 08:33
- Bydliště: Červená Hospoda u Třebíče
Re: předřadný odpor sahary
Ten váleček pod tou spirálou je právě ta tepelná pojistka, která hlídá vinutí odporu, aby se nepřepálil při zastavené vrtuli větráku. Bez krytu bych to neriskoval - něco ti na to padne a budou lítat jiskrymig5732 píše:Jó to vím,že je naopak.Právě sem myslel,že by se dala někde sehnat jen ta patice a prěpájet to. Tady jsou ještě dvě fotečky.Pod tím vinutím je jeden ten drátek odtrhl od toho asi odporu.
Zkus napsat bundelesovi nebo někomu ze sekce Prodám, kdo naboural na předek a ruší auto.
Dřívější srdcovka, prodaná na díly pro UA: Astra 1,6 G caravan 99, motor X16SZR, 55 kW, VIN: W0L0TGF35X20326xx, tmavě zelená metalíza,
Nynější mazlík: Opel Zafira B, 1,9 TDCI - Z19DT - 2008, černá, najeto 170 tkm.
A menuju se Petr a né Vašek a žiju v Hospodě -:)
Nynější mazlík: Opel Zafira B, 1,9 TDCI - Z19DT - 2008, černá, najeto 170 tkm.
A menuju se Petr a né Vašek a žiju v Hospodě -:)
Re: předřadný odpor sahary
A nemáš náhodou přímo maila na bundalese
- vasekpetr1
- Příspěvky: 3106
- Registrován: 24 led 2006, 08:33
- Bydliště: Červená Hospoda u Třebíče
Re: předřadný odpor sahary
Tady třeba je.
Dřívější srdcovka, prodaná na díly pro UA: Astra 1,6 G caravan 99, motor X16SZR, 55 kW, VIN: W0L0TGF35X20326xx, tmavě zelená metalíza,
Nynější mazlík: Opel Zafira B, 1,9 TDCI - Z19DT - 2008, černá, najeto 170 tkm.
A menuju se Petr a né Vašek a žiju v Hospodě -:)
Nynější mazlík: Opel Zafira B, 1,9 TDCI - Z19DT - 2008, černá, najeto 170 tkm.
A menuju se Petr a né Vašek a žiju v Hospodě -:)
Re: předřadný odpor sahary
Zajeď do Opla, kup předřadný odpor do kterého se zacvakává konektor, co jsem ho naposled kupoval stál 450Kč,pak zajeď na vrakoviště, ucvakni si konektor s kusem kabeláže, a napoj to.
Ta ochraná klec tam musí být, starý nekupuj bude v podobném stavu, letovat to jde normálně, ale musíš to řádně prohřát.
Již jsem to několikrát dělal.
Ta ochraná klec tam musí být, starý nekupuj bude v podobném stavu, letovat to jde normálně, ale musíš to řádně prohřát.
Již jsem to několikrát dělal.
Už ne Opel ....
Ex
Astra G Z17DTL 2x
Corsa B X10XE
Astra G Z14XE
Astra G X20XEV
Vectra B X18XE
Vectra A C20NE
Kadett E C16NZ
Monza 20NE
Ex
Astra G Z17DTL 2x
Corsa B X10XE
Astra G Z14XE
Astra G X20XEV
Vectra B X18XE
Vectra A C20NE
Kadett E C16NZ
Monza 20NE
Re: předřadný odpor sahary
Jinač nechápu proč zakládáš již třetí příspěvek, v jednom si říkal že je to řídící jednotkou, když jsem to psal že ne že je to předřadný odpor, tak si pak založil druhý příspěvek s dotazem kde je čidlo chladící kapaliny a teď sui nakonec stejně založil příspěvek s dotazem na předřadný odpor.
Takto to pak nikomu dalšímu nepomůže, když se nedohledá souvyslostí.....
zde : https://www.astra-g.cz/forum/viewtopic.php?f=14&t=25429
a zde : https://www.astra-g.cz/forum/viewtopic.php?f=14&t=26759
Takto to pak nikomu dalšímu nepomůže, když se nedohledá souvyslostí.....
zde : https://www.astra-g.cz/forum/viewtopic.php?f=14&t=25429
a zde : https://www.astra-g.cz/forum/viewtopic.php?f=14&t=26759
Už ne Opel ....
Ex
Astra G Z17DTL 2x
Corsa B X10XE
Astra G Z14XE
Astra G X20XEV
Vectra B X18XE
Vectra A C20NE
Kadett E C16NZ
Monza 20NE
Ex
Astra G Z17DTL 2x
Corsa B X10XE
Astra G Z14XE
Astra G X20XEV
Vectra B X18XE
Vectra A C20NE
Kadett E C16NZ
Monza 20NE
Re: předřadný odpor sahary
Dík.
Zkusím bundelese jestli něco nemá a pak uvidím. Jestli nemá,tak hrknu do to oplu. Jo to beru,ale oni tam řeší předřadný odpor ventilátoru topení,teda většinou. A na tu řídící jednotku sem se ptal,jestli to může být ní. A zatím sem vždy napsal co s tím bylo. I když v některých věcech máš asi pravdu,ale nechci to míchat k vůli vyhledávání.
Zkusím bundelese jestli něco nemá a pak uvidím. Jestli nemá,tak hrknu do to oplu. Jo to beru,ale oni tam řeší předřadný odpor ventilátoru topení,teda většinou. A na tu řídící jednotku sem se ptal,jestli to může být ní. A zatím sem vždy napsal co s tím bylo. I když v některých věcech máš asi pravdu,ale nechci to míchat k vůli vyhledávání.
Re: předřadný odpor sahary
odkud jsi, mám celý motor od ventilátoru a válí se mi už rok ,
prodám za dejme tomu 300 , Bereš????
prodám za dejme tomu 300 , Bereš????
spermin = hermin dříve X16XEL EDICE 100
od 15.10.2007- upravený AGR
nyní Civic
od 15.10.2007- upravený AGR
nyní Civic
Re: předřadný odpor sahary
Sem z Kelče.Je to mezi Hranice na Moravě a Valašským Meziříčím. Pokud je ta patice stejná,tak bych to určitě vzal.
A jestli jsi schopný mi to poslat poštou na dobírku,tak to bude super.
A jestli jsi schopný mi to poslat poštou na dobírku,tak to bude super.
Re: předřadný odpor sahary
mám toto, vrtule je prasklá. jinak funkční.
spermin = hermin dříve X16XEL EDICE 100
od 15.10.2007- upravený AGR
nyní Civic
od 15.10.2007- upravený AGR
nyní Civic