Staci vymenit len tu poistku.
Ventilator funguje len v polohe 4
Re: Ventilator funguje len v polohe 4
Sak musia daco zarobit....
Staci vymenit len tu poistku.
Staci vymenit len tu poistku.
Opel Insignia 2,0 Cdti 2010
Opel Astra G 1,4 16V r.v. 1999 ex...
Opel Corsa B 1,2 16V r.v. 1999
Opel Astra G 1,4 16V r.v. 1999 ex...
Opel Corsa B 1,2 16V r.v. 1999
- Reklama
Re: Ventilator funguje len v polohe 4
To si piš, že chtějí "daco zarobit". Volali mi po chvíli zpět a za ten předřadný odpor s pojistkou chtěli 1.150,-Kč (slovy: jedentisícstopadesátkorun), tak jsem ho velmi slušně poslal do jistých "hlubokých a tmavých" míst.
Chtěl jsem si to vyměnit sám, ale už jsem to dal kámošovi, co je machr na elektriku, ten ví co a jak
Chtěl jsem si to vyměnit sám, ale už jsem to dal kámošovi, co je machr na elektriku, ten ví co a jak
OPEL ZAFIRA 2,2DTI Y22DTR OPC line 2005
https://www.automilacek.cz
https://www.automilacek.cz
-
Radoš 92
- Moderátor
- Příspěvky: 8697
- Registrován: 27 úno 2007, 00:08
- Bydliště: Opava
- Kontaktovat uživatele:
Re: Ventilator funguje len v polohe 4
Tp je tu i v jiném vláknu, stačí pojistku přepájet, prej asi 15 Kč, já koupil starý odpor z astry na ND za 250 Kč.
Aktuální: Opel Zafira B 1.8 | Z18XER . . . . Opel Astra G 1.8 | X18XE1
Předchozí: Opel Zafira B 1.9 CDTi | Z19DT
Předchozí: Opel Zafira A OPC | Z20LET
Předchozí: ]Opel Astra G 2.0 Di| X20DTL
Předchozí: Opel Astra G 1.4 | Z14XE
Předchozí: Opel Zafira B 1.9 CDTi | Z19DT
Předchozí: Opel Zafira A OPC | Z20LET
Předchozí: ]Opel Astra G 2.0 Di| X20DTL
Předchozí: Opel Astra G 1.4 | Z14XE
Re: Ventilator funguje len v polohe 4
potreboval bych vedet kde ten odpor najdu, jestli hadam spravne tak nejlepsi přistup bude když vyndam radio a nekde za ovladanim ventilace ho najdu? dík za informaci
Re: Ventilator funguje len v polohe 4
https://www.astra-g.cz/forum/download/fi ... &mode=view
https://www.astra-g.cz/forum/download/fi ... &mode=view
dostanes se k nemu pres kaslik spolujezce, filtr vyndavat nemusis, nahmatej zeshora kabely vedouci k odporu a jdi po nich, jsou tam takove dve packy (naproti sobe), ktere musis dat od sebe a vytahnout. ja osobne si chytnu rukou ten svazek kabelu a tahnu ho smerem vzhuru a pak odcvaknu jednu packu, nasledne druhou (lepsi zaroven, ale tri ruce nemam), vytahnes to i s kabelama, ktery az pak odpojis je to takovej test zrucnosti. hodne stesti.
https://www.astra-g.cz/forum/download/fi ... &mode=view
dostanes se k nemu pres kaslik spolujezce, filtr vyndavat nemusis, nahmatej zeshora kabely vedouci k odporu a jdi po nich, jsou tam takove dve packy (naproti sobe), ktere musis dat od sebe a vytahnout. ja osobne si chytnu rukou ten svazek kabelu a tahnu ho smerem vzhuru a pak odcvaknu jednu packu, nasledne druhou (lepsi zaroven, ale tri ruce nemam), vytahnes to i s kabelama, ktery az pak odpojis je to takovej test zrucnosti. hodne stesti.
bývalé: Astra G Comfort 1.4 https://www.astra-g.cz/forum/viewtopic.php?f=47&t=25151
nyní: Corsa D Sport 1.4T https://corsaclub.cz/viewtopic.php?f=9&t=9676
nyní: Astra J Cosmo 1.6T SIDI https://www.astra-g.cz/forum/viewtopic.php?f=17&t=378&p=3258#p3258
nyní: Corsa D Sport 1.4T https://corsaclub.cz/viewtopic.php?f=9&t=9676
nyní: Astra J Cosmo 1.6T SIDI https://www.astra-g.cz/forum/viewtopic.php?f=17&t=378&p=3258#p3258
Re: Ventilator funguje len v polohe 4
Takhle skončila jedna neodborná oprava předřadného odporu,pánovi se to opravdu nevyplatilo.
www.astradily.cz
Prodej nových autodílů za výhodne ceny, na Oply i ostatní značky, slevy z cen Autokelly 40%, plnění klimatizací, výměna čelních skel, montáž tažných zařízení
tel. 603 734 474
Prodej nových autodílů za výhodne ceny, na Oply i ostatní značky, slevy z cen Autokelly 40%, plnění klimatizací, výměna čelních skel, montáž tažných zařízení
tel. 603 734 474
Re: Ventilator funguje len v polohe 4
Noo, tak vies, nie kazdemu patri pajkovacka do ruky....ja som tam dal poistku len do 136°C a mala by tam byt tusim ze do 145°C
Mam to tak rok, a nemal som ziaden problem.Opravoval som to na Corse.
Na Astre som s tym problem nemal.Cena opravy bola cca. 1€ za poistku.
Mam to tak rok, a nemal som ziaden problem.Opravoval som to na Corse.
Na Astre som s tym problem nemal.Cena opravy bola cca. 1€ za poistku.
Opel Insignia 2,0 Cdti 2010
Opel Astra G 1,4 16V r.v. 1999 ex...
Opel Corsa B 1,2 16V r.v. 1999
Opel Astra G 1,4 16V r.v. 1999 ex...
Opel Corsa B 1,2 16V r.v. 1999
-
Radoš 92
- Moderátor
- Příspěvky: 8697
- Registrován: 27 úno 2007, 00:08
- Bydliště: Opava
- Kontaktovat uživatele:
Re: Ventilator funguje len v polohe 4
Ty jo...
Aktuální: Opel Zafira B 1.8 | Z18XER . . . . Opel Astra G 1.8 | X18XE1
Předchozí: Opel Zafira B 1.9 CDTi | Z19DT
Předchozí: Opel Zafira A OPC | Z20LET
Předchozí: ]Opel Astra G 2.0 Di| X20DTL
Předchozí: Opel Astra G 1.4 | Z14XE
Předchozí: Opel Zafira B 1.9 CDTi | Z19DT
Předchozí: Opel Zafira A OPC | Z20LET
Předchozí: ]Opel Astra G 2.0 Di| X20DTL
Předchozí: Opel Astra G 1.4 | Z14XE
Re: Ventilator funguje len v polohe 4
Ted jsem tu opravu delal a je to opravdu hotovy za 10min.
-kup tepelnou pojistku(16Kč - 142oC 10A)
-opatrne vylamej tu puvodni
-dej novou a jen TLAKEM KLESTI zmackni zobacky co tam jsou(pajeni se nedoporucuje jelikoz jakmile pojistka vlivem pajeni presahne onech 142 stupnu je v prdeli)
-vrat zpet modul
..a funguje to.
https://www.astra-g.cz/forum/download/f ... &mode=view
-kup tepelnou pojistku(16Kč - 142oC 10A)
-opatrne vylamej tu puvodni
-dej novou a jen TLAKEM KLESTI zmackni zobacky co tam jsou(pajeni se nedoporucuje jelikoz jakmile pojistka vlivem pajeni presahne onech 142 stupnu je v prdeli)
-vrat zpet modul
..a funguje to.
https://www.astra-g.cz/forum/download/f ... &mode=view
Opel Astra Caravan G,r.v.1999 1.6i 16V 100HP (X16XEL)
- Fritol
- Příspěvky: 2005
- Registrován: 21 led 2009, 20:20
- Bydliště: Hradec Kralové
- Kontaktovat uživatele:
Re: Ventilator funguje len v polohe 4
a proto se dava věčinou před diodu pean nebo kleště při pajení kvuli odvodu tepla 
ASTRA-G-2.0 -X20DTL,Hatchback 5dv.1998
Diagnostika: op-com v.1.39 (CZ) / Hradec Kralové a okolí
Diagnostika: op-com v.1.39 (CZ) / Hradec Kralové a okolí
Re: Ventilator funguje len v polohe 4
... akurat to vyberanie je pre ruky a prsty pekny artisticky kusok ....
Opel Astra G Caravan, r.v. 1998
2.0 Di X20 DTL
2.0 Di X20 DTL
- p.somik
- Příspěvky: 992
- Registrován: 15 dub 2010, 20:50
- Bydliště: Moravskoslezský
- Kontaktovat uživatele:
Re: Ventilator funguje len v polohe 4
Když je v háji předřadný odpor, jede jen 3,4, nebo jen 4.Ale co když nejede ani jedna rychlost ? je to taky odporem ? Pojistka tepelná i ve skříňce je O.K. Astra F/rv95 X16SZ
ZAFIRA 1,8i 16V 2003 Z18XE, TC,AUT.KLIMA, PC,TEMPOMAT,LPG sekvenční BRC(od 63.000km)
OP-COM v PL, EN, CZ + redukce na starší Oply
Ex Astra F C14NZ LPG, prodáno ve 338000km, nyní 474000km (LPG od 60.000km)(2017)
OP-COM v PL, EN, CZ + redukce na starší Oply
Ex Astra F C14NZ LPG, prodáno ve 338000km, nyní 474000km (LPG od 60.000km)(2017)
Re: Ventilator funguje len v polohe 4
Jen 4.p.somik píše:Když je v háji předřadný odpor, jede jen 3,4, nebo jen 4.Ale co když nejede ani jedna rychlost ? je to taky odporem ? Pojistka tepelná i ve skříňce je O.K. Astra F/rv95 X16SZ
Meriva B 1,4T 88kW
- vasekpetr1
- Příspěvky: 3106
- Registrován: 24 led 2006, 08:33
- Bydliště: Červená Hospoda u Třebíče
Re: Ventilator funguje len v polohe 4
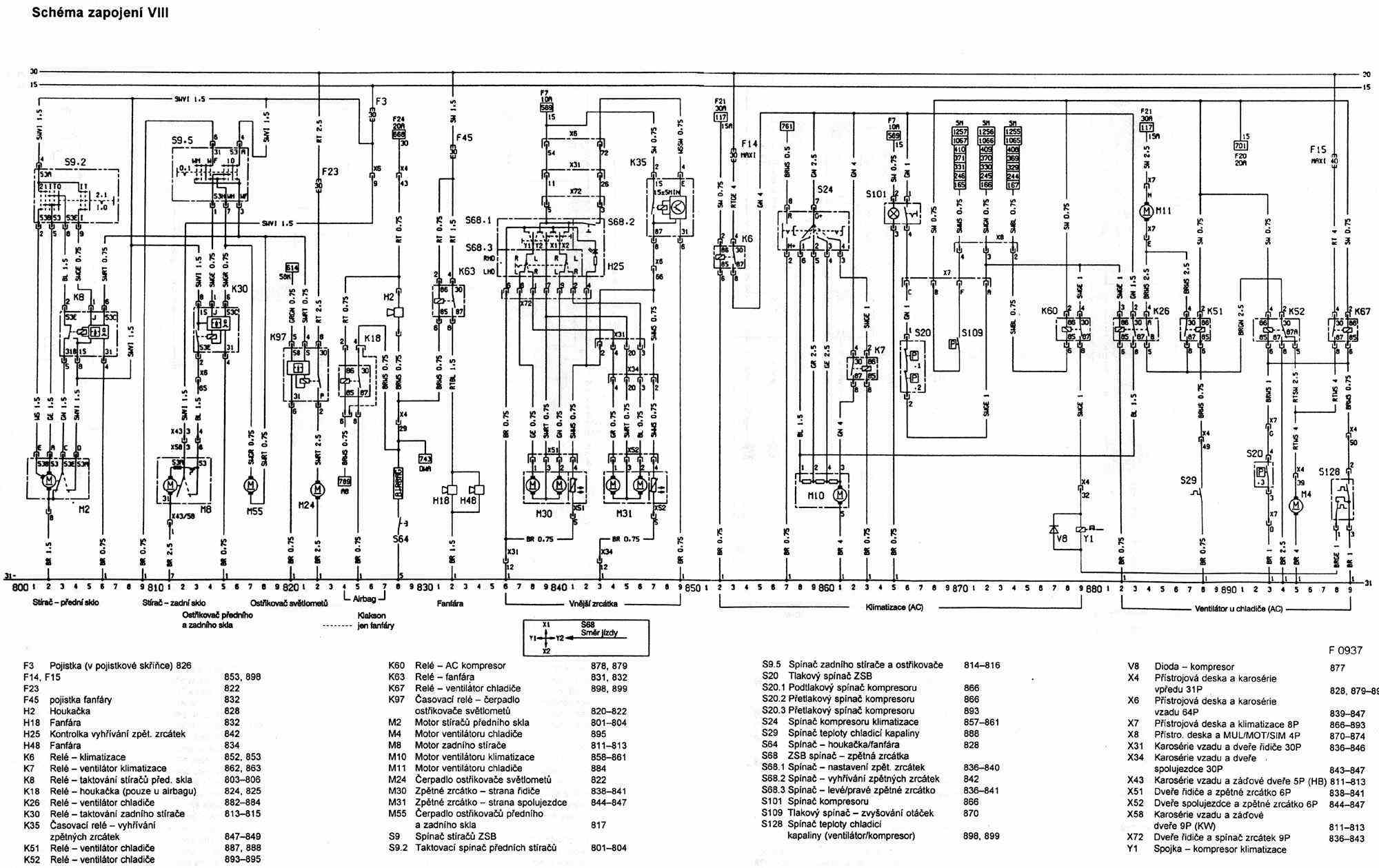
Pozor: p.somik má F-kovou Astru a tam je dle schematu zapojení 4. poloha ventilátoru přes kontakt relé K7 (linie 862). Takže bych zkontroloval relé K6, K7, dále uhlíky v motorku, přepínač S24, ukostření. Schema máš, takže měřit a měřit. Ty schemata jsou na adrese: http://www.opelastra.cz/technika/schemata.htm
Dřívější srdcovka, prodaná na díly pro UA: Astra 1,6 G caravan 99, motor X16SZR, 55 kW, VIN: W0L0TGF35X20326xx, tmavě zelená metalíza,
Nynější mazlík: Opel Zafira B, 1,9 TDCI - Z19DT - 2008, černá, najeto 170 tkm.
A menuju se Petr a né Vašek a žiju v Hospodě -:)
Nynější mazlík: Opel Zafira B, 1,9 TDCI - Z19DT - 2008, černá, najeto 170 tkm.
A menuju se Petr a né Vašek a žiju v Hospodě -:)
- p.somik
- Příspěvky: 992
- Registrován: 15 dub 2010, 20:50
- Bydliště: Moravskoslezský
- Kontaktovat uživatele:
Re: Ventilator funguje len v polohe 4
Podle schéma jsem to zatím nekontroloval, měřil jsem jen ten odpor - vinutí. Ten ventilátor totiž fungoval jen na 3. a 4. stupeň, tchán si objednal nový předřadný odpor, chtěl jsem mu to vyměnit , jenže on tam má odpor s celkem 7 kontakty a objednaný je jen se 6
.
Protože byly kontakty šíleně zarezlé, tak jsem mu je aspoň vyčistil, mysle si že to může být jen špatný kontakt, jenže teď už nejde vůbec.
Ještě zkusím rozebrat manželce auto a změřit napětí přímo u ní, pak snad k něčemu dojdu
Protože byly kontakty šíleně zarezlé, tak jsem mu je aspoň vyčistil, mysle si že to může být jen špatný kontakt, jenže teď už nejde vůbec.
Ještě zkusím rozebrat manželce auto a změřit napětí přímo u ní, pak snad k něčemu dojdu
ZAFIRA 1,8i 16V 2003 Z18XE, TC,AUT.KLIMA, PC,TEMPOMAT,LPG sekvenční BRC(od 63.000km)
OP-COM v PL, EN, CZ + redukce na starší Oply
Ex Astra F C14NZ LPG, prodáno ve 338000km, nyní 474000km (LPG od 60.000km)(2017)
OP-COM v PL, EN, CZ + redukce na starší Oply
Ex Astra F C14NZ LPG, prodáno ve 338000km, nyní 474000km (LPG od 60.000km)(2017)