Přídavný Otáčkoměr

Palubní počítač, Tempomat, automatické nastavení sklonu světlometů, váha vzduchu, navigace, barevný displej
Uživatelský avatar
vasekpetr1
Příspěvky: 3106
Registrován: 24 led 2006, 08:33
Bydliště: Červená Hospoda u Třebíče

Re: Přídavný Otáčkoměr

Příspěvek od vasekpetr1 »

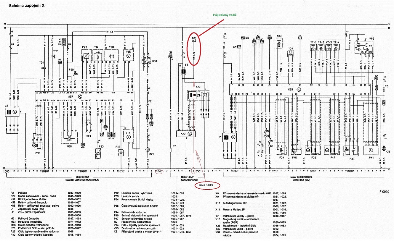
Podle schematu přístrojovky
schema10.jpg
a motoru
schema5.jpg
jsou ty potenciály identické, takže pokud natáhneš z cívky zelený vodič na pin 8 konektoru X21 u přístrojovky, tak by se ti otáčkoměr měl začít otáčet :D .
Dřívější srdcovka, prodaná na díly pro UA: Astra 1,6 G caravan 99, motor X16SZR, 55 kW, VIN: W0L0TGF35X20326xx, tmavě zelená metalíza,
Nynější mazlík: Opel Zafira B, 1,9 TDCI - Z19DT - 2008, černá, najeto 170 tkm.

A menuju se Petr a né Vašek a žiju v Hospodě -:)
Reklama
 

mato1168
Příspěvky: 74
Registrován: 29 bře 2015, 21:46

Re: Přídavný Otáčkoměr

Příspěvek od mato1168 »

A vedel by si poradit cez ktoru prechodku pretiahnut kabel az k pristrojovke?
Opel astra f classic rv.1999 hatchback X14NZ
Uživatelský avatar
vasekpetr1
Příspěvky: 3106
Registrován: 24 led 2006, 08:33
Bydliště: Červená Hospoda u Třebíče

Re: Přídavný Otáčkoměr

Příspěvek od vasekpetr1 »

"Efko" detailně neznám, ale protáhni to někde okolo bowdenu na otvírání kapoty - to by snad s "géčkem" mělo být podobné.
Dřívější srdcovka, prodaná na díly pro UA: Astra 1,6 G caravan 99, motor X16SZR, 55 kW, VIN: W0L0TGF35X20326xx, tmavě zelená metalíza,
Nynější mazlík: Opel Zafira B, 1,9 TDCI - Z19DT - 2008, černá, najeto 170 tkm.

A menuju se Petr a né Vašek a žiju v Hospodě -:)
mato1168
Příspěvky: 74
Registrován: 29 bře 2015, 21:46

Re: Přídavný Otáčkoměr

Příspěvek od mato1168 »

Ok pozrem to. Nasiel som tam jednu prechodku dovnutra ale neda sa vybrat je tam dost napevno.
Opel astra f classic rv.1999 hatchback X14NZ
mato1168
Příspěvky: 74
Registrován: 29 bře 2015, 21:46

Re: Přídavný Otáčkoměr

Příspěvek od mato1168 »

Nevedel by si mi este poradit kde kupim pliesok do konektora na ten pin? lebo tam ziadny nemam v tom pine c.8
Opel astra f classic rv.1999 hatchback X14NZ
Uživatelský avatar
vasekpetr1
Příspěvky: 3106
Registrován: 24 led 2006, 08:33
Bydliště: Červená Hospoda u Třebíče

Re: Přídavný Otáčkoměr

Příspěvek od vasekpetr1 »

Vrakoviště, dotaz na efkovém fóru v sekci Prodám.
Dřívější srdcovka, prodaná na díly pro UA: Astra 1,6 G caravan 99, motor X16SZR, 55 kW, VIN: W0L0TGF35X20326xx, tmavě zelená metalíza,
Nynější mazlík: Opel Zafira B, 1,9 TDCI - Z19DT - 2008, černá, najeto 170 tkm.

A menuju se Petr a né Vašek a žiju v Hospodě -:)
mato1168
Příspěvky: 74
Registrován: 29 bře 2015, 21:46

Re: Přídavný Otáčkoměr

Příspěvek od mato1168 »

Pisal som na dve efkove fora zatial ziadna odpoved. Ty by si nevedel pod cim to hladat na internete?
Opel astra f classic rv.1999 hatchback X14NZ
mato1168
Příspěvky: 74
Registrován: 29 bře 2015, 21:46

Re: Přídavný Otáčkoměr

Příspěvek od mato1168 »

Dnes som sa konecne dostal k natiahnutiu kabla od motoru k otackomeru. Kabel som viedol cez prechodku v motorovom priestore az k pristrojovke. Otackomer som napojil na indukcnu cievku a funguje to. Komplet to trvalo 2,5hodiny.
20160423_212941.jpg
20160423_212923.jpg
Opel astra f classic rv.1999 hatchback X14NZ
Uživatelský avatar
vasekpetr1
Příspěvky: 3106
Registrován: 24 led 2006, 08:33
Bydliště: Červená Hospoda u Třebíče

Re: Přídavný Otáčkoměr

Příspěvek od vasekpetr1 »

Po půl roce přípravy slušný výsledek :D 8) .
Dřívější srdcovka, prodaná na díly pro UA: Astra 1,6 G caravan 99, motor X16SZR, 55 kW, VIN: W0L0TGF35X20326xx, tmavě zelená metalíza,
Nynější mazlík: Opel Zafira B, 1,9 TDCI - Z19DT - 2008, černá, najeto 170 tkm.

A menuju se Petr a né Vašek a žiju v Hospodě -:)
Odpovědět