Kontrolka chladiča motora
Re: Kontrolka chladiča motora
tohle jsem resil taky bauracka ze predu komplet chladice ko nemam tam chladic na klimu ale musis zanechat kondenzator co je primontovan na imbusech z boku klimi a misto sahary na klimu mam zapojenou 21w zarovku a funguje to tak jak ma. kontrolku to jiz nerozvecuje.Musis zanechat kondenzator ten zpusobuje to rozatceni sahary na klime. VYZKOUSENO
- Reklama
-
fantomasxxx
- Příspěvky: 6
- Registrován: 01 zář 2015, 08:37
Re: Kontrolka chladiča motora
Ahoj,
prosím o radu, řeším následující problém:
Po nastartování mi svítí kontrolka ventilátoru. Diagnostika hlásí vadný větrák klimy.
Už jsem vyměnil ventilátor klimatizace i RJ jednotku chlazení (byla cela zoxidovaná).
Po výměně ŘJ už funguje klimatizace i sahara u motoru, ale po spuštění klimy jde do ventilátoru klimatizace napětí jen 9,7V a netočí se.
Zjistil, jsem že pokud před startem nechám zapnutý klíček delší dobu cca 15s než začnu točit, tak chyba ventilátoru nenaskočí a ventilátor se po zapnutí klimy roztočí.
Dle předchozího příspěvku usuzuji, že by to mohl způsobovat kondenzátor, který má spouštět ventilátor. Že by potřeboval delší čas, než se nabije?
Nikde jsem ten zmiňovaný kondenzátor nenašel. Kde se nachází? Co by to ještě mohlo způsobovat? Už jsem celkem bezradný.
Předem děkuji za reakce.
prosím o radu, řeším následující problém:
Po nastartování mi svítí kontrolka ventilátoru. Diagnostika hlásí vadný větrák klimy.
Už jsem vyměnil ventilátor klimatizace i RJ jednotku chlazení (byla cela zoxidovaná).
Po výměně ŘJ už funguje klimatizace i sahara u motoru, ale po spuštění klimy jde do ventilátoru klimatizace napětí jen 9,7V a netočí se.
Zjistil, jsem že pokud před startem nechám zapnutý klíček delší dobu cca 15s než začnu točit, tak chyba ventilátoru nenaskočí a ventilátor se po zapnutí klimy roztočí.
Dle předchozího příspěvku usuzuji, že by to mohl způsobovat kondenzátor, který má spouštět ventilátor. Že by potřeboval delší čas, než se nabije?
Nikde jsem ten zmiňovaný kondenzátor nenašel. Kde se nachází? Co by to ještě mohlo způsobovat? Už jsem celkem bezradný.
Předem děkuji za reakce.
-
fantomasxxx
- Příspěvky: 6
- Registrován: 01 zář 2015, 08:37
Re: Kontrolka chladiča motora
Tak jsem zjistil že těch 15s nechat klíček funguje jen sporadicky né vždy. Také se kontrolka ventilátoru nerozsvítí, pokud nastartuji, hned vypnu a startuji znovu.
Poradí někdo prosím?
Poradí někdo prosím?
- vasekpetr1
- Příspěvky: 3106
- Registrován: 24 led 2006, 08:33
- Bydliště: Červená Hospoda u Třebíče
Re: Kontrolka chladiča motora
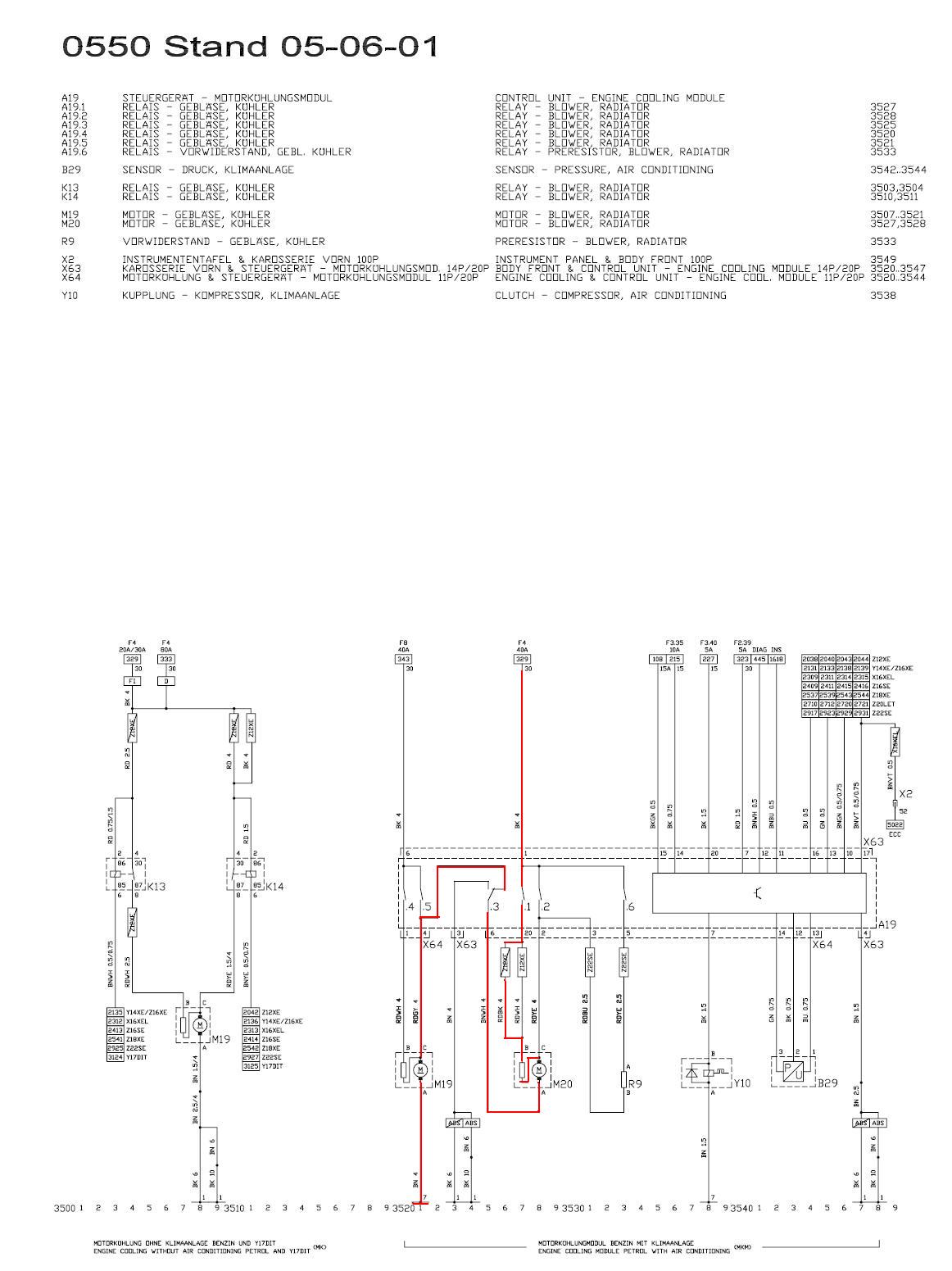
On tam není kondenzátor, ale předřadný odpor, který řídící jednotka postupně vyřazuje svými kontakty relé a tím určuje rychlost otáčení ventilátorů. Zapojení ventilátorů chlazení najdeš třeba zde. Při svorkovém napětí 12V to budou už dost vysoké otáčky. Ten ventilátor se otáčí lehce - není přidřený?
Dřívější srdcovka, prodaná na díly pro UA: Astra 1,6 G caravan 99, motor X16SZR, 55 kW, VIN: W0L0TGF35X20326xx, tmavě zelená metalíza,
Nynější mazlík: Opel Zafira B, 1,9 TDCI - Z19DT - 2008, černá, najeto 170 tkm.
A menuju se Petr a né Vašek a žiju v Hospodě -:)
Nynější mazlík: Opel Zafira B, 1,9 TDCI - Z19DT - 2008, černá, najeto 170 tkm.
A menuju se Petr a né Vašek a žiju v Hospodě -:)
-
fantomasxxx
- Příspěvky: 6
- Registrován: 01 zář 2015, 08:37
Re: Kontrolka chladiča motora
Předřadný odpor jsem vyměnil s novým ventilátorem. Pokud pustím 12V do svorkovnice ventilátoru, tak se točí na oba kontakty, pomaleji a naplno. Takže ventilátor a odpor je OK. Proměřil jsem i kabeláž od RJ chlazení k ventilátoru a taky je OK.
Nechápu proč jde do ventilátoru při zapnuté klimatizaci jen 9,7V a při výše zmiňovaných čachrech s klíčkem se to vzpamatuje a ventilátor se točí.
Nechápu proč jde do ventilátoru při zapnuté klimatizaci jen 9,7V a při výše zmiňovaných čachrech s klíčkem se to vzpamatuje a ventilátor se točí.
- vasekpetr1
- Příspěvky: 3106
- Registrován: 24 led 2006, 08:33
- Bydliště: Červená Hospoda u Třebíče
Re: Kontrolka chladiča motora
Kolik máš ventilátorů na chladičích (chladič vody + chladič klimy)? Ten druhý větrák (pokud tam je) je také na odzkoušení v úplném pořádku? Protože v jednom z rozběhových režimů běží oba větráky v serii.
edit: doplněno schema průtoku proudu přes oba větráky - snad je to z toho poznat:
edit: doplněno schema průtoku proudu přes oba větráky - snad je to z toho poznat:
Dřívější srdcovka, prodaná na díly pro UA: Astra 1,6 G caravan 99, motor X16SZR, 55 kW, VIN: W0L0TGF35X20326xx, tmavě zelená metalíza,
Nynější mazlík: Opel Zafira B, 1,9 TDCI - Z19DT - 2008, černá, najeto 170 tkm.
A menuju se Petr a né Vašek a žiju v Hospodě -:)
Nynější mazlík: Opel Zafira B, 1,9 TDCI - Z19DT - 2008, černá, najeto 170 tkm.
A menuju se Petr a né Vašek a žiju v Hospodě -:)
-
fantomasxxx
- Příspěvky: 6
- Registrován: 01 zář 2015, 08:37
Re: Kontrolka chladiča motora
Ano mám dva ventilátory. Problém je s tím předním na klimatizaci. Pokud mají jít sériově při rozběhu, tak nejdou, přední se netočí, zadní se točí nejprve pomalu, pak se roztočí rychle. Přední se chytne pouze když čachruju s kličkem a nastartuju třeba 2x až třikrát rychle po sobě, pak chyba nenaskočí a při zapnuté klimatizaci se točí oba ventilátory.
- vasekpetr1
- Příspěvky: 3106
- Registrován: 24 led 2006, 08:33
- Bydliště: Červená Hospoda u Třebíče
Re: Kontrolka chladiča motora
A když tomu větráku "pomůžeš" s rozběhem, tak už se udrží? Ta ŘJ chlazení, kterou jsi měnil byla odzkoušena a je v pořádku? Nejlépe na jiném voze. Prověř si podle schematu, že má jednotka všechna potřebná napájecí napětí (F2.39; F3.35 a F3.40).
Dřívější srdcovka, prodaná na díly pro UA: Astra 1,6 G caravan 99, motor X16SZR, 55 kW, VIN: W0L0TGF35X20326xx, tmavě zelená metalíza,
Nynější mazlík: Opel Zafira B, 1,9 TDCI - Z19DT - 2008, černá, najeto 170 tkm.
A menuju se Petr a né Vašek a žiju v Hospodě -:)
Nynější mazlík: Opel Zafira B, 1,9 TDCI - Z19DT - 2008, černá, najeto 170 tkm.
A menuju se Petr a né Vašek a žiju v Hospodě -:)
-
fantomasxxx
- Příspěvky: 6
- Registrován: 01 zář 2015, 08:37
Re: Kontrolka chladiča motora
Na proměření napájecích přívodů do jednotky se chystám odpoledne. Pomoc ventilátoru připojením 12V během puštěné klimy jsem ještě nezkoušel. Jednotku mám starší, nemám ji jak otestovat, ale klimatizaci a saharu motoru ovládá a s diagnostikou komunikuje.
Problém vidím v tom nízkém napětí 9,7V na ventilátoru klimy. To samé napětí jsem naměřil i při připojení staré zoxidované jednotky, kterou jsem vyřadil. Ta stará jednotka nezpouštěla ani saharu motoru.
Problém vidím v tom nízkém napětí 9,7V na ventilátoru klimy. To samé napětí jsem naměřil i při připojení staré zoxidované jednotky, kterou jsem vyřadil. Ta stará jednotka nezpouštěla ani saharu motoru.
- vasekpetr1
- Příspěvky: 3106
- Registrován: 24 led 2006, 08:33
- Bydliště: Červená Hospoda u Třebíče
Re: Kontrolka chladiča motora
Ta jednotka pouze spíná svými kontakty uvedené schéma pro motor ventilátoru. Výkres máš, tak zkus najít, kde ti ten úbytek napětí vzniká. Předpokládám, že kostry máš ověřené, že jsou v pořádku.
Dřívější srdcovka, prodaná na díly pro UA: Astra 1,6 G caravan 99, motor X16SZR, 55 kW, VIN: W0L0TGF35X20326xx, tmavě zelená metalíza,
Nynější mazlík: Opel Zafira B, 1,9 TDCI - Z19DT - 2008, černá, najeto 170 tkm.
A menuju se Petr a né Vašek a žiju v Hospodě -:)
Nynější mazlík: Opel Zafira B, 1,9 TDCI - Z19DT - 2008, černá, najeto 170 tkm.
A menuju se Petr a né Vašek a žiju v Hospodě -:)
-
fantomasxxx
- Příspěvky: 6
- Registrován: 01 zář 2015, 08:37
Re: Kontrolka chladiča motora
Tak jsem promeroval co se dalo,napájení RJ chlazeni, ventilátory atd.Ventilátory i predradne odpory jsou OK.Zjistil jsem ,ze pokud zapnu klíček, vypnu a hned znovu zapnu a nastartuju, tak se chyba nezobrazí a vše maka jak ma.Tento postup fungoval na vsechny pokusy.Pokud otocim klíčkem jen jednou, ihned po nastartování chyba ventilátoru a ventilátor klimy nejede. Dedukuji, ze se pokazilo něco,co při zapnutí klíčku aktivuje RJ chlazení nebo je něco s tou jednotkou.