Chlazení motoru

Uživatelský avatar
Danosss
Příspěvky: 452
Registrován: 22 říj 2011, 12:09
Bydliště: Česká Třebová
Kontaktovat uživatele:

Chlazení motoru

Příspěvek od Danosss »

To miluju:D dva typy velikosti na jeden motor:D diky za info a to cidlo je jen cidlo co?:D neni nejake ktere by odesilalo ventilatoru kdy ma sepnout a kdy ne:D
Astra G hatchback, 1999, 1.8, 85 KW, stříbrná metla
Reklama
 

rocky
Příspěvky: 31
Registrován: 25 čer 2010, 15:12

Re: Chlazení motoru

Příspěvek od rocky »

jestli ti vetraky nespinaji vubec a teplota ti jde nahoru tak mrkni na ridici jednotku chlazeni. Me se taky nespustili i kdyz byla teplota v cervenem a mel jsem odpalenou tu jednotku tak jsem ji vymenil a ted jedou oba.
Uživatelský avatar
kubeSRi
Příspěvky: 2029
Registrován: 03 dub 2011, 17:52
Bydliště: Zlinsko

Re: Chlazení motoru

Příspěvek od kubeSRi »

a já sem myslel že řj chlazení patří ke klimatizaci a větrák chladiče se spíná čidlem zvlášt' jako u většiny vozů
astra G 5dv: xenony,opc front,16''corsa D... momentálně bílá+černá střecha a ruzne upravy...
Uživatelský avatar
vasekpetr1
Příspěvky: 3106
Registrován: 24 led 2006, 08:33
Bydliště: Červená Hospoda u Třebíče

Re: Chlazení motoru

Příspěvek od vasekpetr1 »

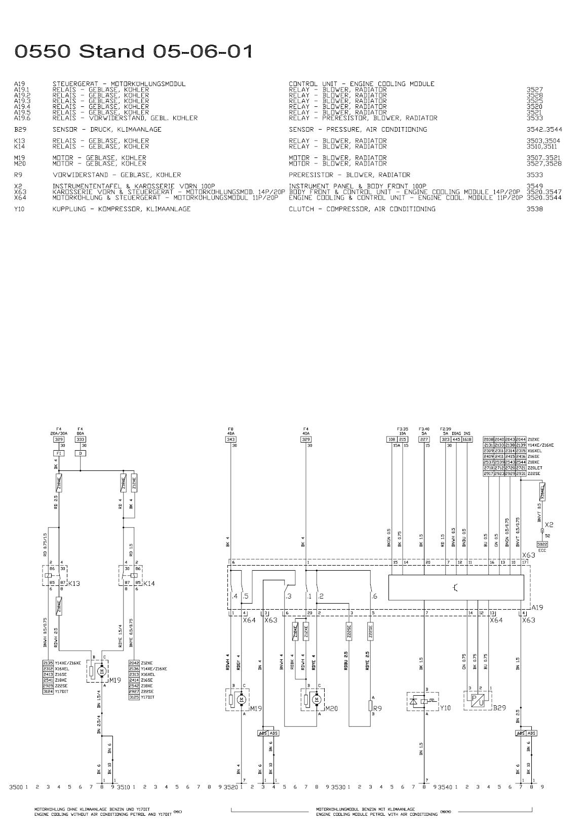
Chlazení a klima01.JPG
Rozumíš elektrickým schematům? Tady je vidět, že ŘJ chlazení má pod palcem jak spouštění klimatizace přes cívku Y1 a její kontrolu tlakovým spínačem B29, tak i spouštění obou ventilátorů M19 a M20. Ty mohou být spouštěny v úplné serii: +12V z pojistky F4 - kontakt A19.6 - předřadný odpor R9 - motor M20 - kontakt A19.3 - motor M19 - kostra. Postupným přepínáním a vyřazováním odporů se zvyšují otáčky ventilátorů, až běží oba v paralelním zapojení na plné otáčky.

Ten obrázek vlevo je zapojení ventilátoru bez ŘJ chlazení (bez klimatizace) a relé K13, K14 jsou řízena z ŘJ motoru.
Dřívější srdcovka, prodaná na díly pro UA: Astra 1,6 G caravan 99, motor X16SZR, 55 kW, VIN: W0L0TGF35X20326xx, tmavě zelená metalíza,
Nynější mazlík: Opel Zafira B, 1,9 TDCI - Z19DT - 2008, černá, najeto 170 tkm.

A menuju se Petr a né Vašek a žiju v Hospodě -:)
Uživatelský avatar
kubeSRi
Příspěvky: 2029
Registrován: 03 dub 2011, 17:52
Bydliště: Zlinsko

Re: Chlazení motoru

Příspěvek od kubeSRi »

to je celkem jednoduché ale nevím teda co platí pro z14xe ten tam ani nevidím jen y třeba se překlikli,x tam je podle tohoto by to šlo pozkoušet,třeba je jen chyba v konaktech,jednotka je v místě kde fíká blato,voda,já sem si na ni vyrobil ochranný kryt..
astra G 5dv: xenony,opc front,16''corsa D... momentálně bílá+černá střecha a ruzne upravy...
Uživatelský avatar
vasekpetr1
Příspěvky: 3106
Registrován: 24 led 2006, 08:33
Bydliště: Červená Hospoda u Třebíče

Re: Chlazení motoru

Příspěvek od vasekpetr1 »

Tam nejsou vypsané všechny typy motorů, takže bych se přikláněl k Z16XE a ten komunikuje s ŘJ motoru po liniích 3544-3547.
Dřívější srdcovka, prodaná na díly pro UA: Astra 1,6 G caravan 99, motor X16SZR, 55 kW, VIN: W0L0TGF35X20326xx, tmavě zelená metalíza,
Nynější mazlík: Opel Zafira B, 1,9 TDCI - Z19DT - 2008, černá, najeto 170 tkm.

A menuju se Petr a né Vašek a žiju v Hospodě -:)
Uživatelský avatar
Danosss
Příspěvky: 452
Registrován: 22 říj 2011, 12:09
Bydliště: Česká Třebová
Kontaktovat uživatele:

Re: Chlazení motoru

Příspěvek od Danosss »

zdravíčko tak jsem byl na diagnostice kvuli tomu že mi nespíná ventilátor chlazení a vůbec se nemohl na tu kontrolu dostat prý bude špatná řídicí jednotka chlazení a prý je společná s klimatizací a proto mi prý nefunguje i klimatizace tu jednotku mi vymění i s prací za 1500. co si o tom myslíte? je to dobrá cena může to být tahle porucha? nebo chce ze mě dostat jen nějakou korunu ?:)
Astra G hatchback, 1999, 1.8, 85 KW, stříbrná metla
rocky
Příspěvky: 31
Registrován: 25 čer 2010, 15:12

Re: Chlazení motoru

Příspěvek od rocky »

Čau ja jsem měl ten samý problém a měl jsem tu jednotku vypálenou. Nešla ani klima po výměně funguje vše. A cena si myslim ze je v klidu.
Uživatelský avatar
Danosss
Příspěvky: 452
Registrován: 22 říj 2011, 12:09
Bydliště: Česká Třebová
Kontaktovat uživatele:

Re: Chlazení motoru

Příspěvek od Danosss »

takže do toho mám jít jo:)??? a je možné že mi nejde kvůli téhle jednotce i vyhřívání sedaček?:) no snad to teda bude jen tím a ne nic jiného dražšího :)
Astra G hatchback, 1999, 1.8, 85 KW, stříbrná metla
Uživatelský avatar
Lake292
Příspěvky: 845
Registrován: 30 srp 2011, 14:55
Bydliště: Brno

Re: Chlazení motoru

Příspěvek od Lake292 »

nemyslim, ja tu jednotku nemam a vyhrievanie funguje... skontroluj poistky
Uživatelský avatar
Danosss
Příspěvky: 452
Registrován: 22 říj 2011, 12:09
Bydliště: Česká Třebová
Kontaktovat uživatele:

Re: Chlazení motoru

Příspěvek od Danosss »

pojistky jsou zkontrolované dioda že fungují svítí ale nic necítím :) ale teď v létě by se hodilo chlazení sedaček:D...já se jen tak ptal jde mi hlavně o ten ventilátor a klimu
Astra G hatchback, 1999, 1.8, 85 KW, stříbrná metla
Uživatelský avatar
mirda2908
Příspěvky: 5276
Registrován: 31 črc 2009, 16:04
Bydliště: Plzen
Kontaktovat uživatele:

Re: Chlazení motoru

Příspěvek od mirda2908 »

danos tu jednotku koupis dobrou u bendelesa nebo lukasso za cca 500kc a vymenis si si ji sam.Dri na dvou sroubech a pak jsou tam dva konektory ktere odpojis a pak vymenis kus za kus a ne 1500kc nato bych se vysral
[color=#000000]Mirdova2908-Tempomat,4xEl.okna,Pp od davida a mnoho dalsich veci[/color]
Kia ceed 1.6crdi 94kw,2013
Uživatelský avatar
Danosss
Příspěvky: 452
Registrován: 22 říj 2011, 12:09
Bydliště: Česká Třebová
Kontaktovat uživatele:

Re: Chlazení motoru

Příspěvek od Danosss »

jenže co když to nebude ono ? on říkal ten chlápek že si to proměří co je dobré a co špatné že to může být kravina za pár korun že to nemusí být v prdeli ta jednotka a kdyby byla tak že ji sežene do litra a 500 chce za práci že mi vše vyzkouší proměří i klimu zkontroluje a v ceně je už i diagnostika pač někdo si učtuje každé napojení a prozkoušení :-/...takže nevím proto se tu ptám zda jo nebo ne. ale díky určitě se otam za kolik by mi tu jednotku prodal:)
Astra G hatchback, 1999, 1.8, 85 KW, stříbrná metla
Uživatelský avatar
vasekpetr1
Příspěvky: 3106
Registrován: 24 led 2006, 08:33
Bydliště: Červená Hospoda u Třebíče

Re: Chlazení motoru

Příspěvek od vasekpetr1 »

Vyhřívání sedaček jde přes pojistky F3.37 - 20A a F3.45 - 15A - zkontroluj obě. Potom už klasicky proměřit napájení v konektorech, přerušení topnic v sedačce atd. Schema přikládám - je to to vpravo.
vyhřívání sedaček.JPG
Dřívější srdcovka, prodaná na díly pro UA: Astra 1,6 G caravan 99, motor X16SZR, 55 kW, VIN: W0L0TGF35X20326xx, tmavě zelená metalíza,
Nynější mazlík: Opel Zafira B, 1,9 TDCI - Z19DT - 2008, černá, najeto 170 tkm.

A menuju se Petr a né Vašek a žiju v Hospodě -:)
Uživatelský avatar
Danosss
Příspěvky: 452
Registrován: 22 říj 2011, 12:09
Bydliště: Česká Třebová
Kontaktovat uživatele:

Re: Chlazení motoru

Příspěvek od Danosss »

jo díky ale to není podstatné ani se to nehodí do tohodle topicu :) spíše mě zajímá názor na tu opravu zda je to přijatelné či ne atd:)
Astra G hatchback, 1999, 1.8, 85 KW, stříbrná metla
Odpovědět