Schéma zapojení pinů ŘJ chlazení, klimatizace

Palubní počítač, Tempomat, automatické nastavení sklonu světlometů, váha vzduchu, navigace, barevný displej
Uživatelský avatar
rychlyradim
Příspěvky: 2619
Registrován: 07 čer 2006, 15:30
Bydliště: Jihomoravský kraj - Blansko
Kontaktovat uživatele:

Schéma zapojení pinů ŘJ chlazení, klimatizace

Příspěvek od rychlyradim »

neměl by někdo schéma zapojení pinů u konektorů do ŘJ chlazení, klimy? nebo kdyby to měl aspoň někdo nafocené to napojení detailně......
byl bych za tuto inf velice vděčný :mrgreen:
Reklama
 

Uživatelský avatar
vasekpetr1
Příspěvky: 3106
Registrován: 24 led 2006, 08:33
Bydliště: Červená Hospoda u Třebíče

Re: Schéma zapojení pinů ŘJ chlazení, klimatizace

Příspěvek od vasekpetr1 »

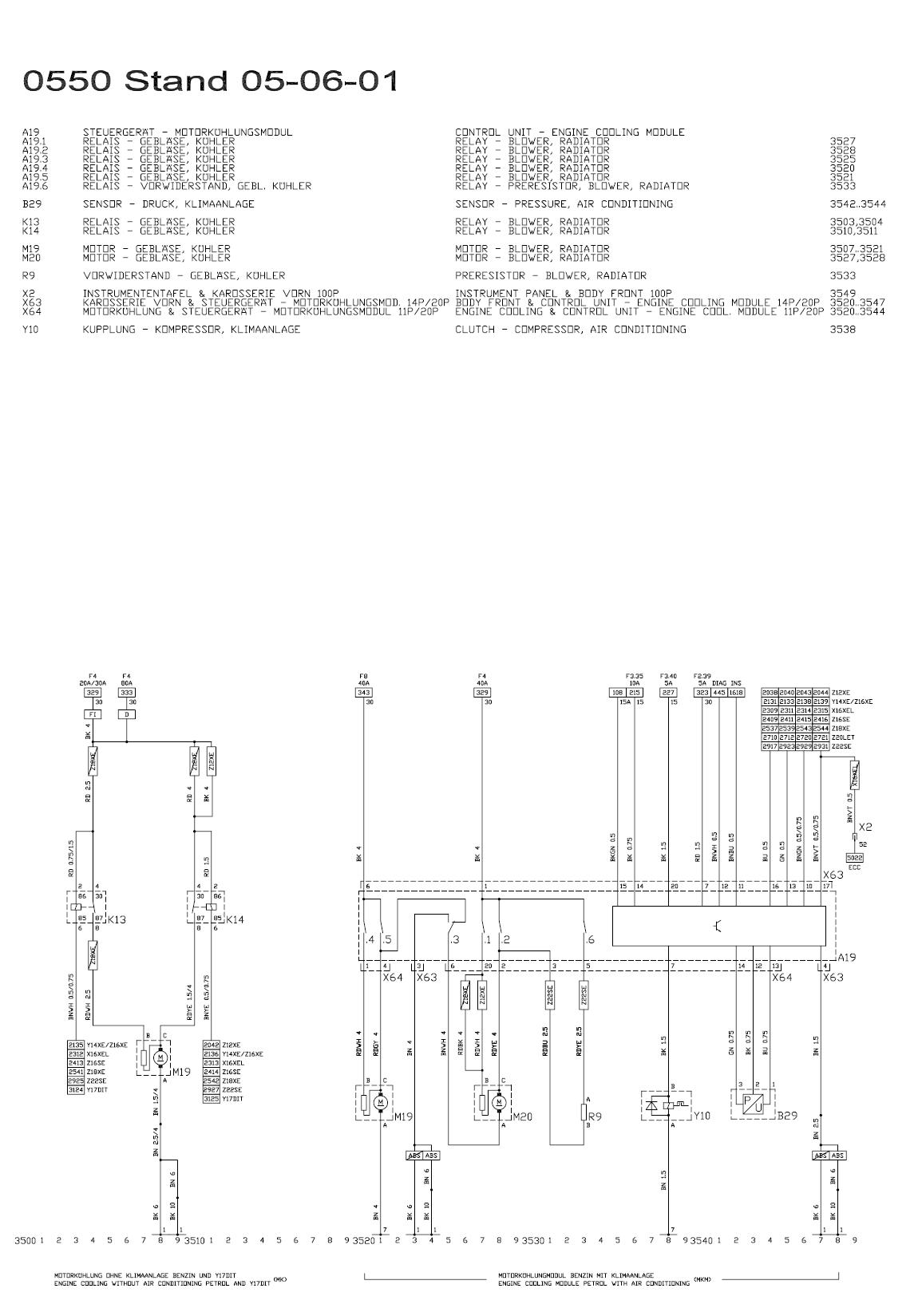
Snad ti to pomůže:
samozřejmě pro tebe platí výkres na pravé straně - vlevo je chlazení bez ŘJ a klimy :wink: .
Přílohy
Chlazení a klima01.JPG
Dřívější srdcovka, prodaná na díly pro UA: Astra 1,6 G caravan 99, motor X16SZR, 55 kW, VIN: W0L0TGF35X20326xx, tmavě zelená metalíza,
Nynější mazlík: Opel Zafira B, 1,9 TDCI - Z19DT - 2008, černá, najeto 170 tkm.

A menuju se Petr a né Vašek a žiju v Hospodě -:)
Uživatelský avatar
rychlyradim
Příspěvky: 2619
Registrován: 07 čer 2006, 15:30
Bydliště: Jihomoravský kraj - Blansko
Kontaktovat uživatele:

Re: Schéma zapojení pinů ŘJ chlazení, klimatizace

Příspěvek od rychlyradim »

jéé ted by to chtělo barevně :-) schéma pěkné..ale když nevím jakou má káblík barvu.. :(
Uživatelský avatar
vasekpetr1
Příspěvky: 3106
Registrován: 24 led 2006, 08:33
Bydliště: Červená Hospoda u Třebíče

Re: Schéma zapojení pinů ŘJ chlazení, klimatizace

Příspěvek od vasekpetr1 »

Na schematu u každého vodiče je anglická zkratka s průřezem a barvou vodiče - čili třeba GN 4 znamená zelený(green) 4,0mm; RD 0,5 znamená červený 0,5mm - kapišto? Jsou tam i kombinace dvou barevných vodičů (třeba BKBU - černomodrý). Když tak napiš, o jaké vodiče se ti jedná a dáme to spolu dohromady 8) .
Dřívější srdcovka, prodaná na díly pro UA: Astra 1,6 G caravan 99, motor X16SZR, 55 kW, VIN: W0L0TGF35X20326xx, tmavě zelená metalíza,
Nynější mazlík: Opel Zafira B, 1,9 TDCI - Z19DT - 2008, černá, najeto 170 tkm.

A menuju se Petr a né Vašek a žiju v Hospodě -:)
Uživatelský avatar
rychlyradim
Příspěvky: 2619
Registrován: 07 čer 2006, 15:30
Bydliště: Jihomoravský kraj - Blansko
Kontaktovat uživatele:

Re: Schéma zapojení pinů ŘJ chlazení, klimatizace

Příspěvek od rychlyradim »

já bych totiž potřeboval zkontrolovat u klimy všechny vodiče...protože jak jsem byl u Dennyho..tak mně kontroloval klimu...a říkal že je úplně prázdná a přitom se kompresor klimy sepínal..?!?!?!?což by správně neměl!!!
no a já jsem cca půl rok zpět...dával nové krytky na řj chlazení a klimy..nebyly tam....a už s tím začal být problém..tak jsem je tam dal..sice jsem si to kreslil a fotil...a přitom se mně stalo..že jsem jeden káblík prohodil?!?!! to bylo zjištěno u RomanK přes diagnostiku....a ted mně tedy trápí to že kompresor klimy jede ikdyž by neměl...jo ještě poznatek...když jsem se v tom hrabal tak samozřejmě já amatér neodpojil baterii, že :oops: :oops: :oops: tak to lehce zajiskřilo když se nějakej káblík spojil....to bylo mimo řj...!!takže ta by měla být zcela ok..tedy snad.. :mrgreen:
kontrolka chlazení nesvítí :-)
Uživatelský avatar
vasekpetr1
Příspěvky: 3106
Registrován: 24 led 2006, 08:33
Bydliště: Červená Hospoda u Třebíče

Re: Schéma zapojení pinů ŘJ chlazení, klimatizace

Příspěvek od vasekpetr1 »

Takže zkusím ti vypsat jednotlivé barvy vodičů na pinech:

X63 pin1: BK 4 - černý 4,0mm - pojistka F4 (40A) v mot. prostoru
pin2: neobsazeno
pin3: BN 4 - hnědý (kostra) 4,0mm
pin4: BN 1,5 - hnědý (kostra) 1,5mm
pin5: neobsazeno
pin6: BK 4 - černý 4,0mm - pojistka F8 (40A) v mot. prostoru
pin7: RD 1,5 - červený 1,5mm - pojistka F2.39 (5A) poj. skříňka
pin10: BNGN 0,5 - hnědozelený 0,5 - řídící jednotka motoru
pin11: BNBU 0,5 - hnědomodrý 0,5mm - kontrolka chlazení na palubce
pin12: BNWH 0,5 - hnědobílý 0,5mm - vývod na konektor diagnostiky
pin13: GN 0,5 - zelený 0,5mm - řídící jednotka motoru
pin14: BK 0,75 - černý 0,75mm - pojistka F3.35 (10A) poj. skříňka
pin15: BKGN 0,5 - černozelený 0,5mm - ovl. napětí ze spínací skříňky
pin16: BU 0,5 - modrý 0,5mm - řídící jednotka motoru
pin17: BNVT 0,5/0,75 - hnědofialový 0,5/0,75mm - řídící jednotka motoru
pin20: BK 1,5 - černý 1,5mm - pojistka F3.40 (5A) poj. skříňka

X64 pin1: RDWH 4 - červenobílý 4mm - motor ventilátoru chladiče
pin2: RDYE 4 - červenožlutý 4mm - motor ventilátoru klimy
pin3: RDBU 2,5 - červenomodrý 2,5mm - předřadný odpor
pin4: RDGY 4 - červenošedý 4mm - motor ventilátoru chladiče
pin5: RDYE 2,5 - červenožlutý 2,5 mm - předřadný odpor
pin6: BNWH 4 - hnědobílý 4mm - motor ventilátoru klimy
pin7: BK 1,5 - černý 1,5mm - cívka spojky kompresoru
pin12: BK 0,75 - černý 0,75mm - tlakové čidlo klimy
pin13: BU 0,75 - modrý 0,75mm - tlakové čidlo klimy
pin14: GN 0,75 - zelený 0,75mm - tlakové čidlo klimy
pin20: RDWH 4 - červenobílý 4mm - motor ventilátoru klimy


Uff :?:
Dřívější srdcovka, prodaná na díly pro UA: Astra 1,6 G caravan 99, motor X16SZR, 55 kW, VIN: W0L0TGF35X20326xx, tmavě zelená metalíza,
Nynější mazlík: Opel Zafira B, 1,9 TDCI - Z19DT - 2008, černá, najeto 170 tkm.

A menuju se Petr a né Vašek a žiju v Hospodě -:)
Uživatelský avatar
rychlyradim
Příspěvky: 2619
Registrován: 07 čer 2006, 15:30
Bydliště: Jihomoravský kraj - Blansko
Kontaktovat uživatele:

Re: Schéma zapojení pinů ŘJ chlazení, klimatizace

Příspěvek od rychlyradim »

klaním se pane 8) 8) je to super....tak v týdnu zkontroluji a pak pro zajímavost nahodím s čím jsem jezdil... :mrgreen: koukal jsem na klimakompresor je tam jeden pin??že bych ten napojil třeba do neobsazeného?že furt jede a jede ikdyž nic v okruhu-žádný plyn??
Uživatelský avatar
vasekpetr1
Příspěvky: 3106
Registrován: 24 led 2006, 08:33
Bydliště: Červená Hospoda u Třebíče

Re: Schéma zapojení pinů ŘJ chlazení, klimatizace

Příspěvek od vasekpetr1 »

A opravdu máš tu spojku klimy sepnutou? Ono to při prvním pohledu trochu mate - otáčí se i ten střed hřídele nebo ten stojí a točí se jen řemenice?
Pokud je stále sepnutá, tak na té spojce je konektor cívky s dvěma vodiči (černý a hnědý), zkus jej rozpojit, jestli cívka rozepne - odzkoušíš, jestli je spojka sepnutá elektricky nebo je v ní mechanický problém. Potom jedině zkontrolovat ty piny v konektorech, zkontroluj i ty pojistky - je jich tam dost na to, aby se při nějaké nevhodné kombinaci chovalo zařízení "nekorektně". To zajiskření při tom přepojování pinů taky nemusí být bez odezvy. Potom jedině měřit a měřit.
Edit: teď se dívám na to schema, co jsem ti poslal, můžeš si odtud vyškrtnout ten předřadný odpor - ten je pouze pro motory Z22SE (nápis v obdélníčku na pozicích 3531 a 3533).
A samozřejmě z výkresu nelze určit, který motor ventilátoru je pro chlazení klimy a který je pro chladič motoru. Ale v reálu je to jedno, protože jsou oba větráky na jednom chladiči.
Dřívější srdcovka, prodaná na díly pro UA: Astra 1,6 G caravan 99, motor X16SZR, 55 kW, VIN: W0L0TGF35X20326xx, tmavě zelená metalíza,
Nynější mazlík: Opel Zafira B, 1,9 TDCI - Z19DT - 2008, černá, najeto 170 tkm.

A menuju se Petr a né Vašek a žiju v Hospodě -:)
Uživatelský avatar
plachkac
Příspěvky: 22
Registrován: 25 čer 2008, 22:40
Bydliště: Valašsko

Re: Schéma zapojení pinů ŘJ chlazení, klimatizace

Příspěvek od plachkac »

Zdarec, je to schema platné i pro X16SZR s manuální klimou? Vyměnil jsem kompresor klimatizace. Ale při sepnutí klimy se nerozběhne ventilátor chladiče klimatizace. Na kámošově Zafiře se rozběhne hned jak pustí klimu. Vyzkouším změřit napětí na pinech do ventilátoru, jestli je v pytli ventilátor nebo je to někde přerušeno někde před ním. Ten předřadný odpor R9 najdu případně kde?
Při jaké teplotě se má rozjet ten druhý ventilátor chladiče motoru (Sahara). Zatím se mi nepodařilo chytit ho zapnutý.

Díky,

T.
Opel Astra G, 1.6 8V, 1998 X16SZR
Uživatelský avatar
plachkac
Příspěvky: 22
Registrován: 25 čer 2008, 22:40
Bydliště: Valašsko

Re: Schéma zapojení pinů ŘJ chlazení, klimatizace

Příspěvek od plachkac »

Tak jsem prošel pojistky a změřil napětí na vstupu do ventilátoru klimy. Pojistky se zdají v pohodě 40 v kabině je v pořádku a 4 a 8 (40A) u motoru se taky zdají ok. Na vstupu bylo 10V při vypnuté klimě a těch 10V tam zůstalo i při zapnutí. Zkusíme ještě prohodit ventilátor z kámošovy Zafiry, typově je stejný. Ale k tomu se dostanem až v úterý.
Zatím to vidím na předřadný odpor nebo vadný ventilátor.
Opel Astra G, 1.6 8V, 1998 X16SZR
Uživatelský avatar
vasekpetr1
Příspěvky: 3106
Registrován: 24 led 2006, 08:33
Bydliště: Červená Hospoda u Třebíče

Re: Schéma zapojení pinů ŘJ chlazení, klimatizace

Příspěvek od vasekpetr1 »

plachkac píše: Zdarec, je to schema platné i pro X16SZR s manuální klimou?

Ano je, pouze ty obdélníčky s vyznačením Z22SE (Z12SE) platí pro uvedený motor. Přeškrtnutý obdélníček platí pro zbývající motory.
plachkac píše: Vyzkouším změřit napětí na pinech do ventilátoru

Hodnoty měření máš kde? To je těch tvých 10 Voltů všude na ventilátoru?
plachkac píše: Ten předřadný odpor R9 najdu případně kde?

viz první poznámka
plachkac píše: Při jaké teplotě se má rozjet ten druhý ventilátor chladiče motoru (Sahara). Zatím se mi nepodařilo chytit ho zapnutý.
Mně se rozjíždí kolem 94°C na teploměru.
Dřívější srdcovka, prodaná na díly pro UA: Astra 1,6 G caravan 99, motor X16SZR, 55 kW, VIN: W0L0TGF35X20326xx, tmavě zelená metalíza,
Nynější mazlík: Opel Zafira B, 1,9 TDCI - Z19DT - 2008, černá, najeto 170 tkm.

A menuju se Petr a né Vašek a žiju v Hospodě -:)
Uživatelský avatar
plachkac
Příspěvky: 22
Registrován: 25 čer 2008, 22:40
Bydliště: Valašsko

Re: Schéma zapojení pinů ŘJ chlazení, klimatizace

Příspěvek od plachkac »

Díky za odpověď.

Těch 10V bylo na vstupním kabelu do ventilátoru. Jestli si dobře pamatuju tak jsme měřili první a třetí dírku v koncektoru.
Na schématu jsem ten předřadný odpor našel, spíš mě zajímalo kd ho najdu v autě ;).

T.
Opel Astra G, 1.6 8V, 1998 X16SZR
Uživatelský avatar
vasekpetr1
Příspěvky: 3106
Registrován: 24 led 2006, 08:33
Bydliště: Červená Hospoda u Třebíče

Re: Schéma zapojení pinů ŘJ chlazení, klimatizace

Příspěvek od vasekpetr1 »

Ve svém autě ho nenajdeš. První a třetí dírka konektoru k ventilátorům jsou odlišné obvody: pin 1 konektoru X64 je pro předřadný odpor ventilátoru M19 a pin 3 je přívod ventilátoru M20 (propoj mezi piny 2 a 3 v ŘJ chlazení).
Chce to přesnější měření pinů na ventilátory v době, kdy jeden z větráků běží a je spuštěná klima.
Co to udělá, když odpojíš teplotní čidlo vody (za alternátorem)? Po jeho odpojení (je tam konektor) by měl jít motor špatně nastartovat, rafička teploměru vyleze na maximálku, a okamžitě naběhnou oba ventilátory na maximální otáčky. Bude též svítit porucha chlazení.
Dřívější srdcovka, prodaná na díly pro UA: Astra 1,6 G caravan 99, motor X16SZR, 55 kW, VIN: W0L0TGF35X20326xx, tmavě zelená metalíza,
Nynější mazlík: Opel Zafira B, 1,9 TDCI - Z19DT - 2008, černá, najeto 170 tkm.

A menuju se Petr a né Vašek a žiju v Hospodě -:)
Uživatelský avatar
plachkac
Příspěvky: 22
Registrován: 25 čer 2008, 22:40
Bydliště: Valašsko

Re: Schéma zapojení pinů ŘJ chlazení, klimatizace

Příspěvek od plachkac »

Hmmm, asi jsem si to mereni predstavoval moc jednoduse. Díky za tip, jdu to vyzkouset, snad ten konektor k cidlu teplot najdu.
Tobe se nerozbehne ventilator chladice klimy hned po zapnuti klimatizace?

T.
Opel Astra G, 1.6 8V, 1998 X16SZR
Uživatelský avatar
plachkac
Příspěvky: 22
Registrován: 25 čer 2008, 22:40
Bydliště: Valašsko

Re: Schéma zapojení pinů ŘJ chlazení, klimatizace

Příspěvek od plachkac »

Tak jsem cidlo teploty odpojil. A oba ventilatory se rozjely jak o zivot. Takze ventilatory jsou asi v pohode. Problem bude jinde. Ale kde? Ridici jednotka klimy?
Opel Astra G, 1.6 8V, 1998 X16SZR
Odpovědět