Vnitřní teploměr

Zde řešíme vše co se týká interiéru a exteriéru mimo tzv. tuningu a stylingu, na to máme jinou sekci...
Odpovědět
datlik
Příspěvky: 94
Registrován: 27 bře 2008, 23:13
Bydliště: Brno

Příspěvek od datlik »

Spermine proč se nedá použít místo 2ks termistorů paralelně(10K) termistor 4k7?Ukazuje to špatnou teplotu?
Já přemýšlým to přepínání dát na páčku pro displey (tlačítko resetovací)
Reklama
 

Uživatelský avatar
spermin
Příspěvky: 3499
Registrován: 16 led 2007, 09:21
Bydliště: OSTRAVSKO

Příspěvek od spermin »

datlik píše:Spermine proč se nedá použít místo 2ks termistorů paralelně(10K) termistor 4k7?Ukazuje to špatnou teplotu?
přesně tak, asi 5 stupňů. postě má jiné stoupání. A ta nula je důležitá. :shock:
spermin = hermin dříve X16XEL EDICE 100
od 15.10.2007- upravený AGR
nyní Civic
datlik
Příspěvky: 94
Registrován: 27 bře 2008, 23:13
Bydliště: Brno

Příspěvek od datlik »

spermin píše:
datlik píše:Spermine proč se nedá použít místo 2ks termistorů paralelně(10K) termistor 4k7?Ukazuje to špatnou teplotu?
přesně tak, asi 5 stupňů. postě má jiné stoupání. A ta nula je důležitá. :shock:
Co se dá dělat-použiji dva termistory.Díky
Uživatelský avatar
Red_Dragon
Příspěvky: 40
Registrován: 31 kvě 2007, 13:19
Bydliště: kousek od Hořovic
Kontaktovat uživatele:

Příspěvek od Red_Dragon »

Mám to taky zapojené asi 2 týdny, ale zatím nedoladěné.
Jenom u mě nesedí ty čísla pinů, u mě to jsou 2 a 3, barvy sedí (mám MID).

Nemáte někdo vysvětlení pro to co píše spermin s tou teplotou, že pokud přepne z nižší na vyšší teplotu, tak se hodnota na displeji nezmění.
Já mám totiž ten samý problém, ale bohužel tam už mám dvoupolohový přepínač, u kterého nemám tu mezipolohu jako má spermin. A mám to na takovém místě, že výměna za jiný přepínač je komplikované řešení.
Astra G 5dv, 1.8 16V Z18XE, r.v.2002
Uživatelský avatar
spermin
Příspěvky: 3499
Registrován: 16 led 2007, 09:21
Bydliště: OSTRAVSKO

Příspěvek od spermin »

Red_Dragon píše:Mám to taky zapojené asi 2 týdny, ale zatím nedoladěné.
Jenom u mě nesedí ty čísla pinů, u mě to jsou 2 a 3, barvy sedí (mám MID).

Nemáte někdo vysvětlení pro to co píše spermin s tou teplotou, že pokud přepne z nižší na vyšší teplotu, tak se hodnota na displeji nezmění.
Já mám totiž ten samý problém, ale bohužel tam už mám dvoupolohový přepínač, u kterého nemám tu mezipolohu jako má spermin. A mám to na takovém místě, že výměna za jiný přepínač je komplikované řešení.
no, holt jsem měl štěstí, a to jenom proto, že už byl namarkovaný, a když jsem jej chtěl vyměnit, nešlo
to stornovat. :idea: rozdíl v ceně 1 Kč, tak jsem to nechal být. :P
asi nejrychlejší bude jej vyměnit.
spermin = hermin dříve X16XEL EDICE 100
od 15.10.2007- upravený AGR
nyní Civic
Uživatelský avatar
Red_Dragon
Příspěvky: 40
Registrován: 31 kvě 2007, 13:19
Bydliště: kousek od Hořovic
Kontaktovat uživatele:

Příspěvek od Red_Dragon »

No nejrychlesi mozna, ale hezky to asi nebude. Moje reseni totiz bylo, ze jsem dal maly zamackavaci prepinac vedle displeje (mala dirka ve stredovem panelu). Problem taky bude doma najit 3-polohovy prepinac. V mém okolí totiz obchody s takovyma vecma nejsou. :(
Astra G 5dv, 1.8 16V Z18XE, r.v.2002
datlik
Příspěvky: 94
Registrován: 27 bře 2008, 23:13
Bydliště: Brno

Příspěvek od datlik »

Red_Dragon píše:No nejrychlesi mozna, ale hezky to asi nebude. Moje reseni totiz bylo, ze jsem dal maly zamackavaci prepinac vedle displeje (mala dirka ve stredovem panelu). Problem taky bude doma najit 3-polohovy prepinac. V mém okolí totiz obchody s takovyma vecma nejsou. :(
Myslím si,že to pak ztrácí účinek něco přepínat a před tím zamačkávat.Do toho obchodu bych se rozjel i kdyby to bylo daleko jak čert (přestaneš to využívat,pokud budeš něco dělat navíc).Jinak ta teplota se přepne i s normálním přepínačem-ale chce to čas (procesor prostě čeká co se bude dít) a může to trvat i minutu.
Uživatelský avatar
spermin
Příspěvky: 3499
Registrován: 16 led 2007, 09:21
Bydliště: OSTRAVSKO

Příspěvek od spermin »

vyzkouším, ale mám dojem že ani 3 minuty nepomohly :roll:
spermin = hermin dříve X16XEL EDICE 100
od 15.10.2007- upravený AGR
nyní Civic
Frydex
Příspěvky: 5540
Registrován: 19 pro 2006, 23:37
Bydliště: Ostrava jak Cyp
Kontaktovat uživatele:

Příspěvek od Frydex »

Podle mě to bude trvat tak dlouho, dokut to čidlo nevyšle nový signál o změně teploty. (je to jen úvaha) :oops:
Moje Astrina 1,7DTi
Obrázek Přišel jsem, viděl jsem, zůstal jsem....
A je vám jasné, že: "Jak to má kola, nebo kozy, tak s tím budou brzo problémy...."
Uživatelský avatar
spermin
Příspěvky: 3499
Registrován: 16 led 2007, 09:21
Bydliště: OSTRAVSKO

Příspěvek od spermin »

Frydex píše:Podle mě to bude trvat tak dlouho, dokut to čidlo nevyšle nový signál o změně teploty. (je to jen úvaha) :oops:
dnes vyzkoušeno, pomalu se údaj mění, ale je to rychlostí cca 1°C za 1 min. 8 °C trvalo orientačně 8 minut. :twisted:
spermin = hermin dříve X16XEL EDICE 100
od 15.10.2007- upravený AGR
nyní Civic
Uživatelský avatar
frenkiecz
Příspěvky: 733
Registrován: 13 čer 2008, 17:02
Bydliště: Nová Paka
Kontaktovat uživatele:

Re: Vnitřní teploměr

Příspěvek od frenkiecz »

Prosím dráteníky o radu:Kde a jakou barvou začíná přívod kabílků k teploměru.Chci si dodělat vnitřní a nechce se mi hledat a hlavně nevím jak to najít.Moc by mi to pomohlo.
Opel Zafira A 1.8 16V X18XE1
Uživatelský avatar
vasekpetr1
Příspěvky: 3106
Registrován: 24 led 2006, 08:33
Bydliště: Červená Hospoda u Třebíče

Re: Vnitřní teploměr

Příspěvek od vasekpetr1 »

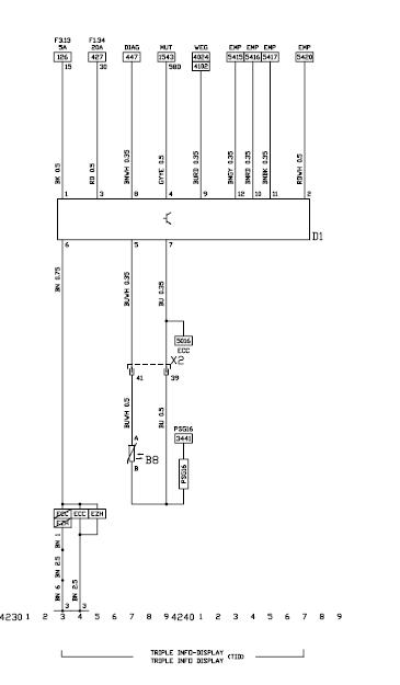
Jestli dobře koukám, tak modrý 0,5 a modro-bílý s tím samým průřezem. Na TIDu kontakty 5-7 nebo na konektoru X2 (nepřístupný) piny 30-41. Hodně úspěchů.
Přílohy
TID.JPG
Dřívější srdcovka, prodaná na díly pro UA: Astra 1,6 G caravan 99, motor X16SZR, 55 kW, VIN: W0L0TGF35X20326xx, tmavě zelená metalíza,
Nynější mazlík: Opel Zafira B, 1,9 TDCI - Z19DT - 2008, černá, najeto 170 tkm.

A menuju se Petr a né Vašek a žiju v Hospodě -:)
Uživatelský avatar
frenkiecz
Příspěvky: 733
Registrován: 13 čer 2008, 17:02
Bydliště: Nová Paka
Kontaktovat uživatele:

Re: Vnitřní teploměr

Příspěvek od frenkiecz »

Děkuji tomu pánovi. 8)
Dám vědět ,jak jsem dopadl.
Opel Zafira A 1.8 16V X18XE1
Uživatelský avatar
frenkiecz
Příspěvky: 733
Registrován: 13 čer 2008, 17:02
Bydliště: Nová Paka
Kontaktovat uživatele:

Re: Vnitřní teploměr

Příspěvek od frenkiecz »

Kam s ním?Kde ho umístit? :?
Opel Zafira A 1.8 16V X18XE1
Uživatelský avatar
vasekpetr1
Příspěvky: 3106
Registrován: 24 led 2006, 08:33
Bydliště: Červená Hospoda u Třebíče

Re: Vnitřní teploměr

Příspěvek od vasekpetr1 »

Máš na mysli čidlo? Někteří ho dávali k nohám spolujezdce okolo odkládací skříňky.
Dřívější srdcovka, prodaná na díly pro UA: Astra 1,6 G caravan 99, motor X16SZR, 55 kW, VIN: W0L0TGF35X20326xx, tmavě zelená metalíza,
Nynější mazlík: Opel Zafira B, 1,9 TDCI - Z19DT - 2008, černá, najeto 170 tkm.

A menuju se Petr a né Vašek a žiju v Hospodě -:)
Odpovědět